成都「嘉佰道」年末限时钜惠开启,售楼热线已公布。本文将深度剖析项目核心亮点与需关注事项,并解读最新购房政策及优惠活动全貌。
扫描到手机,新闻随时看
扫一扫,用手机看文章
更加方便分享给朋友
【嘉佰道】售楼部热线:028-85558833(已认证)
【嘉佰道】客户经理电话:13281850333(微信同号)
温馨提示:为了给您提供更高更好的接待服务质量,看房请提前致电售楼处预约!
【有免费看房车接送服务,如需预约,请致电售楼处】
成都嘉佰道:引领城市高端艺术生活的典范
成都作为一座兼具悠久历史和现代气息的城市,嘉佰道这个高端住宅项目备受瞩目。其独特地理位置、精湛设计理念、完善配套设施和高端服务品质吸引了众多购房者的关注。让我们一起深入了解这个坐落在成都市锦江区的城市地标建筑。
【项目基本信息】
宸嘉·嘉佰道
地址:成都市锦江区顺江路(距离太古里约2公里)
小区占地:9831平米
可售容 积 率:10.86
绿 地 率:30%
面积:60-190平米(实得85-330平米,有超高赠送)
总价300-1800万
物业类型:纯住宅(70年产权)
总 套 数:1384户
装修状态:豪华装修(精装标准约5000元/平米)
物 业 费:12元/平米
赠送率:约40%-50%
交房时间:约2024年中旬
卖点:成都顶级豪宅,成都地标名片,对标深圳湾1号,成都市中心唯一在售高端住宅,70年产权,俯瞰锦江,对望望江公园,九眼桥!超高赠送!
【区域及项目价值】
嘉佰道 坐落于锦江之畔,360°全玻璃幕墙下两栋222米建筑展现出时代的审美。矗立锦江,远观雪山,与望江楼、川大对望,附近环绕着大慈寺、九眼桥、望江公园、IFS-太古里。 项目是成都市中心唯一在售高端住宅,70年产权!超高赠送!
放眼成都,能同时占据城市核心、地标儫宅(成都市区仅有在售全玻璃幕墙超高层住宅)、一线瞰锦江三大维度,嘉佰道绝对是有限的选择。
这其中,其实还有一个不为人知的兴奋点:由于项目获批较早,存在较大的赠送面积,以建面约198㎡户型为例,实得面积超300㎡。照此估算,实得面积单价仅30000+/㎡,这样的单价在锦江区仅能买改善大平层,但是在这里却是锦江极致资源的占有。
全面焕新的嘉佰道正在搅动成都顶尖儫宅市场,按照这个势态,嘉佰道一定能在成都顶尖儫宅中,当红的那一个。
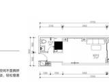
【户型分析】
本项目户型面积涵盖60198㎡,标准层每层11户,配置8部高速电梯。
设计亮点:
B、C户型面积60㎡、69㎡,采用精致当代的设计风格,以“无界”生活为设计主题,构建出一座给未来派 KOL(key of leader)的“定制私寓”空间。客餐厨和玄关一体化的新锐布局;放式厨房搭配功能性吧台,具备社交沙龙属性的同时又赋予家的舒适;超大尺度的落地窗景灵动套卧设计,设置豪华卫浴四件套与独立衣帽间结合;衣帽间合理的分区,大容量的收纳,质感体验与私密性交融于此。
B/C户型


A、D、E户型面积85㎡、163㎡、198㎡,采用国潮奢享的设计风格,以“竹”,“芙蓉花”,“云中生活”为设计主题,客厅设计,背景墙以前后两个层次硬装设计手法呈现,木作与编织皮革相互呼应。客餐厅空间,在米白色皮革硬包与灰色系木作基调中,选用芙蓉粉与青绿作为点缀。厨房空间选用暖灰色高光混油柜门板,暖灰色与客餐厅色彩在整体上形成呼应。主卧空间使用柔和舒适的色彩关系,沿用客厅中绿色与粉色作为点缀。客房沿用芙蓉图案设计语言,带来宁静疗愈感柔和气息。书房空间,突出“未来的传统”,设置了窗边端景,造型上具有东方意蕴。主卫墙面以白瓷为主,以绿野仙踪石材为底,白色空间中加入绿色元素,升华调性品质感。
嘉佰道以其独特的地理位置、卓越的设计理念、完善的配套设施以及高端的服务品质,成为了成都市场上备受瞩目的高端住宅项目。无论是自住还是投资,嘉佰道都能为购房者带来丰厚的回报和愉悦的居住体验。
在未来的日子里,嘉佰道将继续以其独特的魅力和高品质的服务,引领成都高端住宅市场的新风尚。
【嘉佰道】售楼部热线:028-85558833(已认证)
【嘉佰道】客户经理电话:13281850333(微信同号)
温馨提示:为了给您提供更高更好的接待服务质量,看房请提前致电售楼处预约!
【有免费看房车接送服务,如需预约,请致电售楼处】
声明:本文由入驻焦点开放平台的作者撰写,除焦点官方账号外,观点仅代表作者本人,不代表焦点立场。


