重庆「桃源居」售楼部电话(开发商)楼盘测评及户型解析 | 年末最新销售动态
扫描到手机,新闻随时看
扫一扫,用手机看文章
更加方便分享给朋友
【桃源居】售楼部热线:023-68855575(已认证)
温馨提示:看房请提前致电售楼部预约!享内部优惠政策!
【有免费看房车接送服务,如需预约,请致电售楼部】
十年城就——桃源居
空港核芯蔚然大城
开发商:香港世外桃源发展有限公司
地址:两江新区空港经济示范区桃源大道
在售产品信息
六区香榭郦:光幕高层
1#2#3#号楼 (现房)
总共17层 2T4户
A户型 四室两厅两卫
套内:106㎡ 建面129㎡
特价:127-136万
B户型 四室两厅两卫
套内:103㎡ 建面125㎡
特价:125-133万
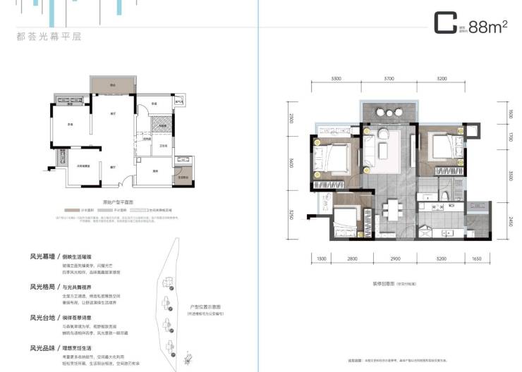
C户型 三房两厅单卫
套内:72 建面88
特价:88-92万
16-17层是跃层产品 建面199平 带70平左右露台
总价:256万 剩2套(工抵特价210万)
项目总占地1275亩,总体量120万方
容积率:1.93 绿化率35%
车位配比香榭郦1:1.58香澜山1:1.15
物业费:高层2.8元/平 洋房3.8元/平
户型图品鉴
【桃源居】售楼部热线:023-68855575(已认证)
温馨提示:看房请提前致电售楼部预约!享内部优惠政策!
【有免费看房车接送服务,如需预约,请致电售楼部】
声明:本文由入驻焦点开放平台的作者撰写,除焦点官方账号外,观点仅代表作者本人,不代表焦点立场。


