成都「空港云璟林著」售楼部电话-8月楼盘动态-最新内部优惠活动
扫描到手机,新闻随时看
扫一扫,用手机看文章
更加方便分享给朋友
【空港云璟林著】售楼部热线:028 - 85558833(已认证)
【空港云璟林著】项目经理热线 13281850333(微信同号)
温馨提示:为确保能为您提供更优质、更高水平的接待服务,若您有看房计划,请提前致电售楼处进行预约!
【提供免费看房车接送服务,若您需要预约此项服务,请致电售楼处】
空港发展云璟林著的四大独特优势
如今,房地产市场的竞争态势已从以往单纯的“规模比拼”,逐渐迈入“产品较量”的新阶段。在这样的大背景下,“产品力”对于房地产企业的重要性愈发显著。在全新的市场需求与激烈竞争的双重驱动下,房地产企业若想在众多竞品中突出重围,回归产品本身无疑是当务之急。在房地产市场的众多项目中,作为空港发展在怡心湖打造的1号作品,同时也是TOP级别的云璟林著,自亮相伊始便吸引了极高的关注度,成为A区炙手可热的项目。那么,它究竟凭借哪些亮点,在众多楼盘中脱颖而出呢?
▶「公园化点式灵动布局」
云璟林著项目占地面积约83亩,容积率为2.0。这样的规模与指标在当下的A区市场中较为难得,要知道今年A区供应的地块大多在50亩左右,较大的地块无疑为景观与公共区域配套的精心打造提供了更充裕的空间与更多的可能性。在这片近百亩的土地上,云璟林著仅规划了21栋11 - 17F的
纯板式花园洋房
。如此规划,旨在将更多的空间让渡给绿化与景观,为业主营造一个绿意盎然、景色宜人的居住环境。更为值得一提的是,云璟林著摒弃了传统的阵列式与大围合式排布方式,创新性地采用了
“公园化点式 + 围合”
的灵动布局。这种独特的布局方式,使得建筑错落有致地分布,不仅极大地拓展了住户的视野范围,让景观尽收眼底,项目最大楼间距更是达到了约167米之宽。这一设计有效地避免了楼栋之间的对视问题,充分保障了业主的隐私。同时,多个中庭空间由此形成,阳光得以毫无阻碍地洒入,清风也能自由穿梭其中,为社区带来了更多的生机与活力。
▶「公园微度假型景观」
云璟林著虽位于A区,但与怡心湖公园的距离仅900余米,拥有无可争议的湖居属性。然而,该项目
“城市公园微度假社区”
的定位,并非仅仅依赖于B区的湖景资源。从功能性与丰富性的角度来看,A区的公园配套资源甚至更具优势。在项目西侧,约190亩的云熙公园(规划中)与项目紧密相邻。这条沿着物联大道延伸的带状景观长廊,规划了四个各具特色的景观组团,分别为
乐活花园、秘境花园、运动花园、养健花园
,其中秘境花园组团就紧邻云璟林著。而在项目东侧,是规划中的约452亩的26°活力绿心公园。该公园巧妙地利用了原有地块的峡谷浅丘地貌与原始河道,精心规划了丰富多样的场景,如充满自然气息的树阵广场、活力四射的运动场地、智能化的智慧设施、别具特色的城市风廊以及碧波荡漾的碧水清波等,一幅如诗如画的共享水岸画卷在眼前徐徐展开。不仅如此,在社区内部,云璟林著同样精心规划了
“一环三轴多园景观体系”
,打造出十个主题各异的景观组团。这些景观组团不仅具有极高的观赏性,更强调互动性,能够为不同年龄段的业主提供丰富的活动空间,满足全龄段的休闲娱乐需求。关键在于,内外双重公园景观均由空港发展倾力打造。这种一体化的规划与打造模式,使得云璟林著在“城市公园微度假型社区”这一定位上具备了难以被超越的独特优势。
▶「高颜值的立面与公区」
在这个追求品质与颜值的时代,“颜值即正义”同样适用于房地产项目。云璟林著的公建化立面设计极具艺术美感,大面积采用LOW - E玻璃,搭配米白色与灰色的真石漆,再加上硬朗流畅的线条勾勒,整体呈现出简洁而又时尚的现代风格,辨识度极高,在众多建筑中独树一帜。步入小区,酒店式入户门厅搭配奢石照壁,在暖色调灯光的烘托下,将回家时那种温馨、舒适的氛围诠释得淋漓尽致,让业主从踏入家门的那一刻起,就能感受到满满的仪式感。
▶「最“卷”的改善户型」
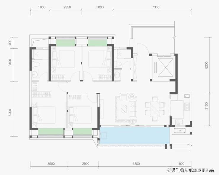
户型设计向来是当下房地产市场竞争最为激烈的部分。云璟林著的建筑面积约在113 - 182㎡之间,全部采用T2的板式结构,其中建筑面积约143㎡的四房户型更是在众多竞品中脱颖而出,将户型的“内卷”程度提升到了一个新的高度。该户型配备了令人瞩目的270°环幕端厅,这样的配置即便在很多建筑面积200㎡以上的大平层产品中都不一定能见到,而云璟林著却将其应用在建面约143㎡的改善四房户型上,可谓十分奢侈。与之相匹配的是,约7米的转角景观阳台搭配约4.2米的进深,使得整个端厅拥有约13米的采光面。更为惊喜的是,所有建面约143㎡户型的主景观面,要么正对着社区中庭,要么面向公园,真正做到了户户有景。再加上U型厨房的合理设计,端厅建面约50㎡,极大地提升了室内空间的整体感、功能性以及社交属性。从空间布局来看,建面约143㎡户型巧妙借鉴了大平层与别墅的设计理念。入户后,动线路径合理分开,一侧设置为客餐厅与主卧,另一侧则安排三间次卧。这种设计既有效增加了居住的私密性,又突出了主人的尊崇地位。此外,超10㎡私享的全明电梯前厅、约25㎡的主卧套房,次卧最小面积也约10㎡的空间,以及近100%的得房率,这些优势都使得云璟林著建面约143㎡户型在市场上具备了强大的吸引力。
再看项目建面约134㎡的四房户型,同样采用2T2设计,整体面宽约15.1米,充分保证了室内的明亮与通透。该户型拥有可私享的全明电梯前厅,约6.8米的横厅,算上景观阳台面积,整个LDK厅面积近40㎡,进一步强化了改善型住房应有的尺度感。主卧套房设计奢适,配备步入式衣帽间,客卧的设计也充分兼顾了功能性与舒适性。建面约134㎡户型成功在功能性与舒适度之间找到了完美的平衡点。
实际上,买房的本质是一种价值选择行为。特别是在当前楼市整体处于低迷状态的大环境下,购房者更应着重关注物业的可持续发展潜力以及长远利益。紧跟城市发展的步伐与方向,若您考虑在城南置业,那么怡心湖区域无疑是重点关注对象。而在怡心湖买房,空港发展·云璟林著自然是您的首选项目。目前,空港发展·云璟林著已于12月26日取得预售许可证,首批推出100套125.68 - 142.67㎡的4房产品,清水售价仅18796元/㎡起。最低不到240W/套的总价,这无疑为众多购房者提供了一个绝佳的机会,使其能够轻松上车怡心湖核心区域。【空港云璟林著】售楼部热线:028 - 85558833(已认证)【空港云璟林著】项目经理热线 13281850333(微信同号)温馨提示:为了给您提供更高更好的接待服务质量,看房请提前致电售楼处预约!【有免费看房车接送服务,如需预约,请致电售楼处】
声明:本文由入驻焦点开放平台的作者撰写,除焦点官方账号外,观点仅代表作者本人,不代表焦点立场。


