成都「茂业时代广场」置业专线持续更新:楼盘最新动态、户型信息及销售进度实时播报,国庆黄金周专属购房特惠现已火热进行中!
扫描到手机,新闻随时看
扫一扫,用手机看文章
更加方便分享给朋友
【茂业时代广场】售楼部热线:028-85558833(已认证)
【茂业时代广场】客户经理电话:13281850333(微信同号)
温馨提示:为了给您提供更高更好的接待服务质量,看房请提前致电售楼部预约!
【有看房车接送服务,如需预约,请致电售楼部】
【 茂业•时代广场】
总价万买一层送一层
一、项目基本情况:
开 发 商:茂业集团
项目总面积:22.3亩
地 址:茂业•时代广场
项 目 性 质:公寓LOFT
单 价:8800—12500
装 修 情 况:清水
物 业 费:4元/㎡
梯 户 比:2梯16户//2梯18户
产 权:40年
交 房 时 间:现房交付
面 积:34-55平
销 售 楼 层:6、7层
项目价值:
自带人气的茂业百货将成为航空港核心区域人气最旺的城市商业综合体
投资门槛低、预估月租1800—2500,回报率5%的出租回报率
超100万常居住人群环绕、核心区域唯一在售LOFT绝版户型(买一层送一层)
交通配套概括:
成都双流国际机场
地铁号线(1.3公里)
地铁号线(施工中)
条以上公交线路通达全城
商业配套概括:
茂业百货(已开业)、花天锦地美食坊、韩国城购物广场、白家海鲜市场
教育配套概括:
拥有 3-18 岁完善教育体系,金苹果圣菲幼稚园、西航港实验幼儿园、川师附小、蓝港外国语实验学校、西航港小学、盐外、棠外、成都信息工程大学、川大江安校区、西南民族大学等,周边以私立学校为主(家庭有经济实力,大部分学生走读、陪读)以及 3 个本科院校形成的校园经济圈
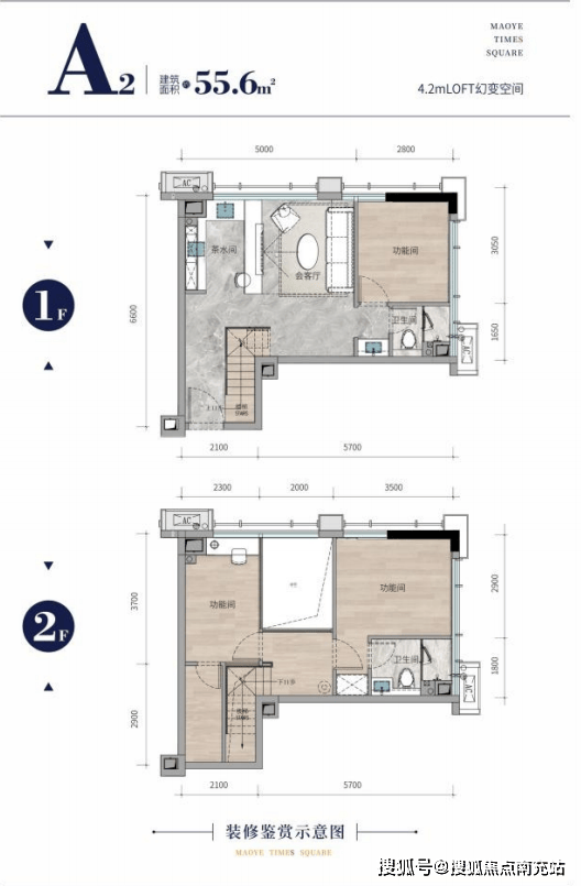
户型鉴赏:
38㎡LOFT套一(变套二)

55㎡LOFT套三

【茂业时代广场】售楼部热线:028-85558833(已认证)
【茂业时代广场】客户经理电话:13281850333(微信同号)
温馨提示:为了给您提供更高更好的接待服务质量,看房请提前致电售楼部预约!
【有看房车接送服务,如需预约,请致电售楼部】
声明:本文由入驻焦点开放平台的作者撰写,除焦点官方账号外,观点仅代表作者本人,不代表焦点立场。


