重庆「万华麓悦江城」全面评测:品质与环境怎么样?详细分析周边配套、户型设计及居住体验,附售楼处联系电话。
扫描到手机,新闻随时看
扫一扫,用手机看文章
更加方便分享给朋友
【万华麓悦江城】
重庆第一神盘?万华麓悦江城
收官在即 200万内上车最后机会
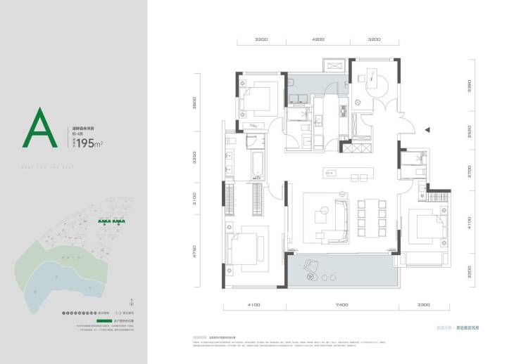
精装森系T2现房建面 117 - 195m²
【万华麓悦江城】售楼部热线:023 - 68855575(已认证)
温馨提示:看房请提前致电售楼部预约!享内部优惠政策!
【有免费看房车接送服务,如需预约,请致电售楼部】
万华,作为重庆首个打造社群的开发商,旗下的【万华麓悦江城】堪称神盘。在这里,每周都会举办各式各样丰富多样的社群活动,同时还提供定制化的物业服务,能让住户体验到与众不同的生活方式。
——【碧影溪】产品信息——
建面117㎡户型,主力总价处于165 - 195万区间;建面140㎡户型,主力总价为190 - 220万;建面195㎡户型,主力总价在270 - 430万之间。
——项目卖点——
1️⃣ 周边教育资源丰富,有悦来人民小学,小区还自带幼儿园。2️⃣ 项目为现房,原滩公园近在咫尺,举步可达。3️⃣ 住宅具备豪宅品质,同时还有增值的社区服务。4️⃣ 作为超级大盘,配套设施先行建设,生活便利。5️⃣ 项目自建22万方商业以及美术馆,满足多元需求。6️⃣ 社区食堂方便业主用餐,社区巴士/摆渡车进一步提升业主出行体验。
⚡ 品质方面:【万华麓悦江城】拥有100亩的湖景公园,容积率仅1.2 ,打造的是4 - 6层的纯洋房小区,采用1T2户设计。其外立面选用铝板+真实漆+石材,从踏入小区那一刻起,便能深切感受到园林景观的精致细腻,以及建筑用材用料的考究精良,尽显品质格调。⚡ 性价比方面:碧影溪组团可谓是性价比极高的存在。仅需160万起,就能享受原本价值400W的豪华高端住宅品质,还能全方位享受万华的大型配套设施,如景区式的公园、丰富多彩的社群活动、完善的配套商业等,真正做到物超所值。⚡ 居住体验方面:万华在房地产界犹如“胖东来”一般的存在。它不仅仅提供高品质的住宅,更出色的是其社区服务。万华是实实在在用心做服务的开发商,为业主营造了近乎完美的社群生活,这也是业主们对其认同感极强的关键所在。? 这里的社区服务丰富多样,涵盖诸多方面:一年举办上千场的社群活动,丰富业主生活;两天一次提供买菜车接送服务,方便业主采购食材;配备轻轨接驳车,解决业主出行难题;小孩上学有物业专车接送,保障孩子安全;提供娃儿全托管服务(包含辅导作业),让家长省心;小区内自带社区食堂,满足业主用餐需求;还设有会所,里面包含KTV、书吧、麻将馆、影音室等多种休闲娱乐空间,打造全龄段的生活配套体系。
【户型图品鉴】
【万华麓悦江城】售楼部热线:023 - 68855575(已认证)
温馨提示:看房请提前致电售楼部预约!享内部优惠政策!
【有免费看房车接送服务,如需预约,请致电售楼部】
声明:本文由入驻焦点开放平台的作者撰写,除焦点官方账号外,观点仅代表作者本人,不代表焦点立场。


