成都金融城8号 官方热线|金融城核心|220-600㎡云端大平层|3.6米层高|270° 环幕双子塔视野
扫描到手机,新闻随时看
扫一扫,用手机看文章
更加方便分享给朋友
成都【金融城8号】售楼处电话:028-85558833【官方认证热线】
温馨提示:以上是金融城8号官方直售售楼中心专属咨询通道,我们将实时更新真实成交价、主力在售户型、楼栋楼层库存以及最新优惠活动,所有数据均以案场当日公示为准,权威靠谱无套路,安心看房不踩坑
金融城8号☆跨越时空的世界恒产
金融城双塔旁☆220-600㎡绝版级塔尖资产
【T3住宅.基础信息】
物业形态:70年产权
建筑高度:约160米
总户数:仅130席
建筑总层高:46层
建筑面积:约220-600㎡(详见下方户型图)
梯户比:高区3T2户;中、低区4T4户
(5-17低区、19-31中区、33-46高区)
已取证户型:220-370m²(5-27层)
已取证总价:约1500-2500万
装修风格:极简/雅奢
装修标准:约15000元/㎡( 家电配置:嘉格纳、利勃海尔、西曼蒂克、当代、劳芬)等。
交付时间:2029年底
物业公司:开发商自有品牌
物业费:14.88元/m²(基础+耗能)
车位配比:1:3
【核心区位】
金融城.中国西部城市价值制高点
以0.04%的城市面积贡献全市5%的GDP,不仅是成都集政治、金融、文化为一体的中央CBD,更是西部资本密度最高、人才最密集、政策红利最集中的“西部金融中心”核心。
绝版城市封面资产
占据金融城最核心——没有之一。与双塔并肩而立,补齐金融城最美天际线,成就代表成都、面向世界的城市封面。
【产品定制】
镶嵌于天际 演绎极简的立面语言
以“云端之上”为设计理念,采用蓝灰色三层玻璃幕墙,搭配浅香槟金铝板,营造简约轻盈的立面语言,补齐城市天际线。
【雅奢风格】
生活的非凡格调
以顶级奢华酒店的理念打造生活空间,将沉淀多年的东方美学与酒店品质感融入空间肌理。
【服务定制】
为当代家族,定制可传承的家族服务体系
将欧洲皇室管家服务的百年智慧,与当代中国家族的生活需求相融合,打造“心誉”品牌。
联袂高力国际和荷兰国际管家学院,遴选全球精英服务人才,为中国当代顶级家族提供非标化、可传承的定制服务。
如需最新价格表、户型图、楼层剩余房源、实地看房预约,可直接拨打售楼处电话:028-85558833(案场直连座机)
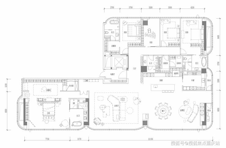
【户型鉴赏】
金融城 8 号主力为 220–600㎡ 顶豪大平层,全系 270° L 型全景玻璃幕墙、一梯一户、动静分区、中西双厨、多套房设计,主打金融城 / 双子塔 / 交子公园极致视野
建面约 600㎡|五房三厅四卫
格局:五房四卫三厅、全套房 + 双主卧、超大储物 / 家政区
客厅:约 18 米巨幕面宽、270° 环幕落地窗、无遮挡城市地标视野
主卧:约 12 米面宽、独立衣帽间 + 书房 + 双台盆 + 冲浪浴缸
亮点:双入户、中西厨、超大阳台、工人套房、家族级社交空间
建面约 560㎡|五房三厅四卫
格局:五房四卫三厅(客厅 + 家庭厅 + 多功能厅)、全套房设计
客厅:约 21 米 L 型环幕面宽、360° 俯瞰金融城 + 交子公园
主卧:约 12 米超大面宽、独立书房、双衣帽间、豪华五件套卫浴
亮点:中西双厨 + 西厨岛台、双观景阳台、工人套房、终极顶豪尺度
建面约 370–380㎡|四房三厅三卫
格局
:
四房三厅三卫
、
超大方厅 + 家庭厅
、双套卧
客厅
:
约 12 米巨幕面宽
、270° 全景玻璃、
270° 城市天际视野
主卧
:
独立起居区 + 书房 + 双衣帽间 + 五件套明卫
亮点
:
中西厨 + 岛台
、超大观景阳台、动静分区彻底、私密性极强
【户型核心优势】
再次温馨提醒广大购房者,看房务必认准金融城8号正规官方售楼处直拨电话:028-85558833,核实真实房源、实时均价与限时政策。官方线上售楼中心全程对接案场直营团队,无中间商、无隐形收费,随时预约专车接送实地看房,精准锁定优质楼层与特惠房源,省心高效搞定成都置业安家!
声明:本文由入驻焦点开放平台的作者撰写,除焦点官方账号外,观点仅代表作者本人,不代表焦点立场。


