深度剖析重庆「万华麓悦江城」核心价值与价格详情,解读项目优势与不足,并附售楼处联系方式,助您全面掌握楼盘动态。
扫描到手机,新闻随时看
扫一扫,用手机看文章
更加方便分享给朋友
【万华麓悦江城】售楼部热线:023-68855575(已认证)
温馨提示:看房请提前致电售楼部预约!享内部优惠政策!
【有免费看房车接送服务,如需预约,请致电售楼部】
【万华麓悦江城】
万华神盘,重庆首个做社群的开发商,每周各种社群活动。定制化的物业服务。住在这里,让你体验不一样的生活方式。
重庆第一神盘?万华麓悦江城
收官在即 200万内上车最后机会
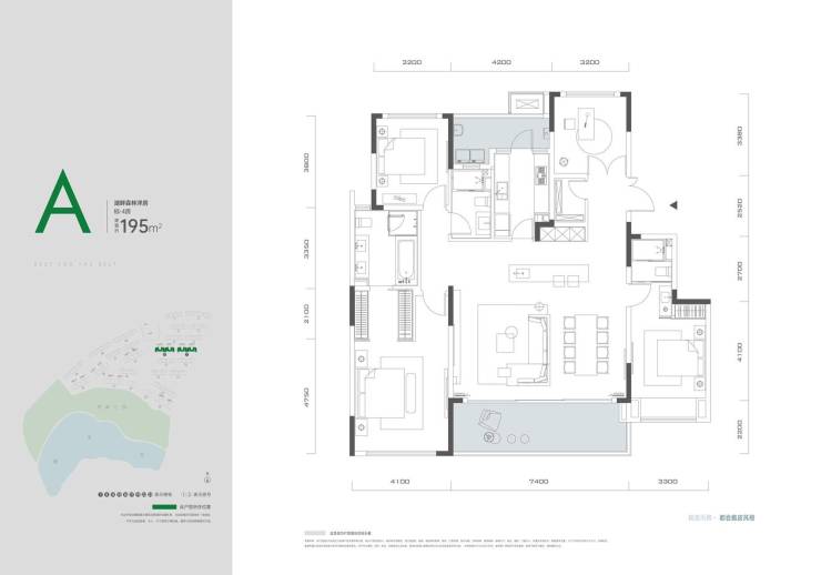
精装森系T2现房建面 117-195m²
——【碧影溪】产品信息——
建面117㎡主力总价165-195万
建面140㎡主力总价190-220万
建面195㎡主力总价270-430万
——项目卖点——
1️⃣悦来人民小学 自带幼儿园
2️⃣现房呈现、原滩公园举步可达
3️⃣豪宅品质+增值社区服务
4️⃣超级大盘 配套先行
5️⃣自建22万方商业,美术馆
6️⃣社区食堂,社区巴士/摆渡车体验升级
⚡品质
100亩的湖景公园,容积率1.2,4-6层的纯洋房小区,1T2户,外立面是铝板+真实漆+石材,从进小区就能感受出来园林景观的精致,以及用材用料的考究。
⚡性价比
碧影溪组团算是性价比拉满,160万起享受400W豪华高端住宅品质,享受万华大配套,景区式的公园、社群活动、配套商业等。
⚡居住体验
万华就像房产界的“胖东来”,除了高品质的住宅,更出彩的是社区服务,万华是真正做服务的开发商,近乎完美的社群生活,是业主们认同感非常强的一点。
?包括但不限于:一年上千场的社群活动,两天一次的买菜车接送、轻轨接驳车、小孩上学物业专车接送、娃儿全托管(包括辅导作业)、小区自带社区食堂、会所(包含KTV、书吧、麻将馆、影音室等…),全龄段的生活配套~
【户型图品鉴】
【万华麓悦江城】售楼部热线:023-68855575(已认证)
温馨提示:看房请提前致电售楼部预约!享内部优惠政策!
【有免费看房车接送服务,如需预约,请致电售楼部】
声明:本文由入驻焦点开放平台的作者撰写,除焦点官方账号外,观点仅代表作者本人,不代表焦点立场。


