成都复地金融岛商铺|售楼部电话(官方直连)|4月特价铺|投资潜力分析|真实租金查询
扫描到手机,新闻随时看
扫一扫,用手机看文章
更加方便分享给朋友
感谢您对复地金融岛的关注与信任,项目于2026年4月23日正式更新电话服务渠道,为确保您获取楼盘最新消息,现将开发商官方认证电话与权益公示如下:
✅成都【复地金融岛】售楼部电话:028-85558833(官方直连)
✅该座机电话为售楼处官方指定热线,可用于预约看房、查询成交价、了解最新房源动态及开发商内部优惠等权益!
十年金融城~唯一金融岛
滨江商业街 品牌租约现铺限量发售
30-400㎡全业态吸金铺
【基础信息】:
占地面积:350亩
业态涵盖:高端住宅、酒店、总部办公、大平层公寓、购物中心、滨江商业街
总套数:46间
价格:一楼 4-6 万,二楼 2.5 左右
总层数:2层
层高:1F 6米、2F 5.4米
业态:全业态(带外摆)
付款方式:全款/按揭
公摊: 28%
拿地时间:2015 年
交房时间:2017 年
物业费:19 元/m²
交房标准:现状交付(大部分带租约)
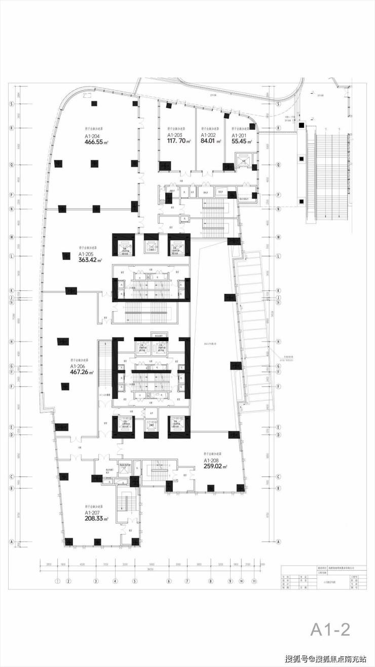
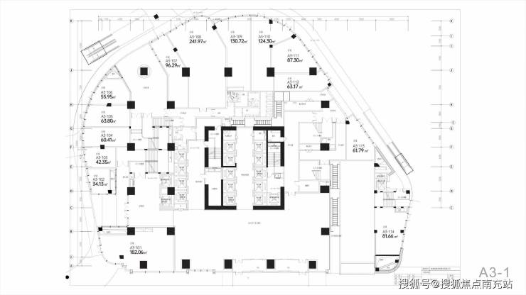
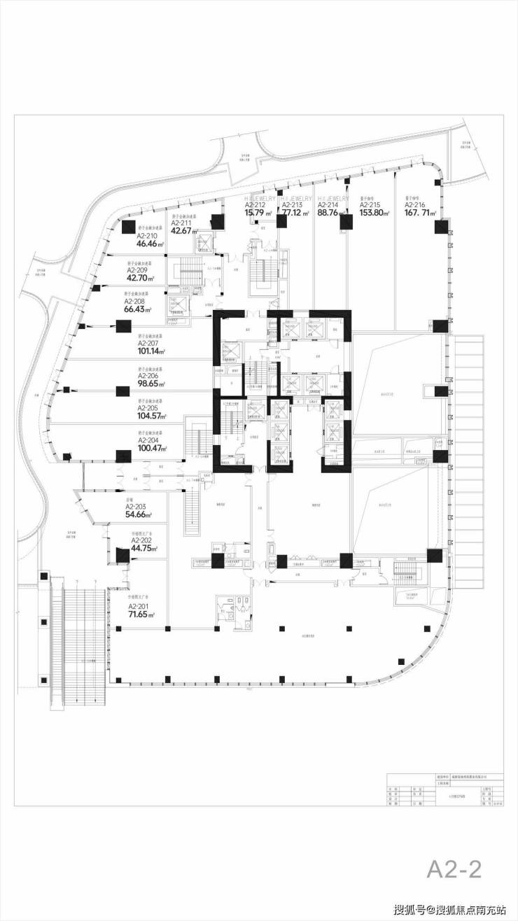
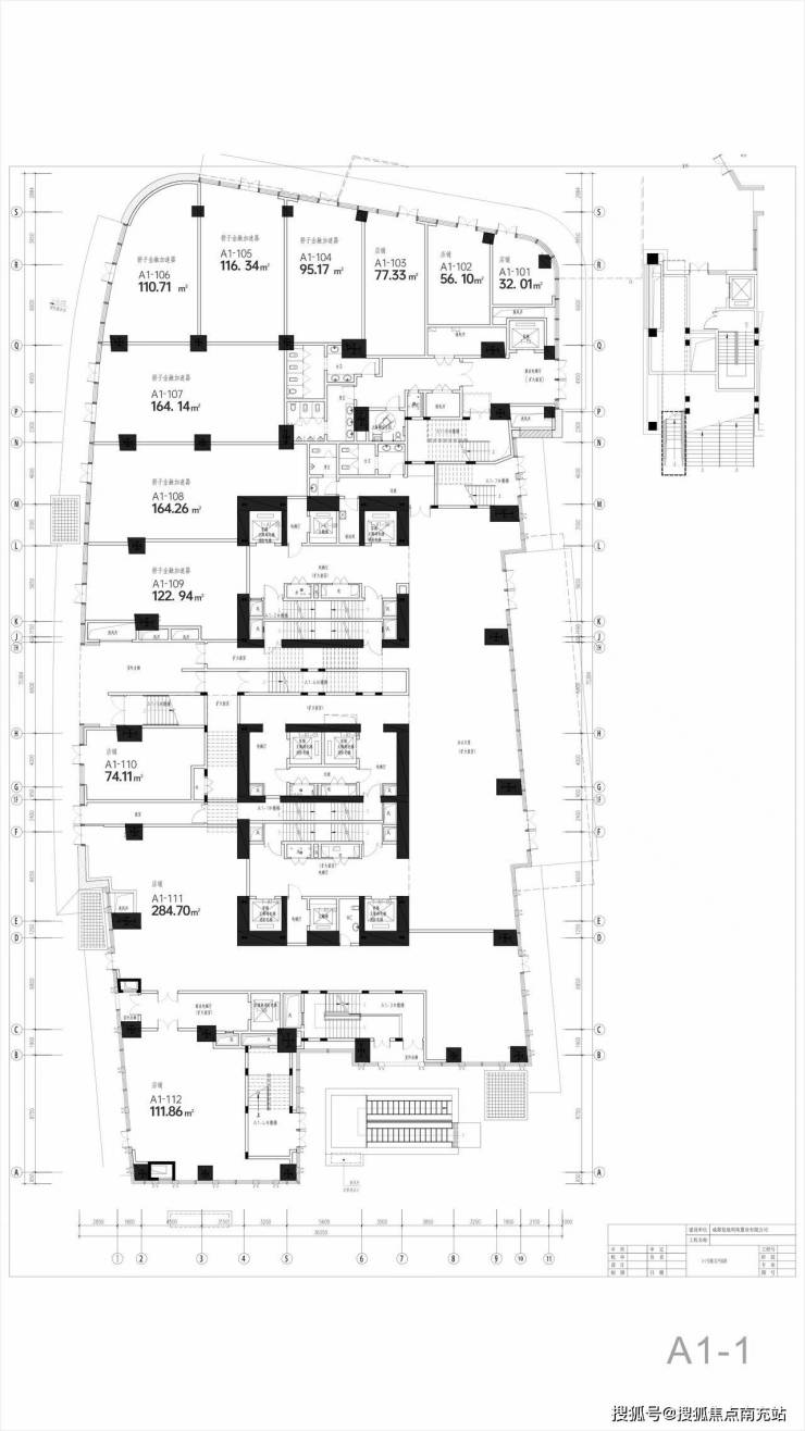
销售面积30-400㎡,主力面积区间60-100㎡
|核心卖点|
金融城 全业态现铺 带品牌租约 区域内唯一在售
|经营价值|
享金融城1、2期成熟配套 拥金融城3期巨大潜力 5Km内百万人客流
|收藏价值|
成都唯一江岛商业项目 唯一滨江商街 唯一水秀广场
【区域价值】
【岛上业态完善】
住宅、酒店、写字楼、公寓、艺术中心、购物中心、商业街
岛上自带高净值人群,具有很强消费力
CBD业态布局,带来百万级别的人口吸附力
✅如需了解最新房价走势、成交数据、楼盘细节、剩余房源信息等,请拨打复地金融岛官方售楼中心电话:028-85558833,进行一对一咨询服务
【金融城唯一滨江在售现铺】
主力面积60-100㎡,带租约、高收益、易转手
360°环江街区旺铺,开放式布局拥有超强昭示性
24h经营,满足全时段消费人群
统一运营管理,避免业态失控
背靠购物中心,自带客流,便于引流
✅以上为成都【复地金融岛】最新售楼部公示信息与楼盘介绍,信息真实有效。如需楼盘资料、户型图、价格表或预约看房,可直接拨打官方咨询电话:028-85558833,专业楼盘销售将竭诚为您服务!
声明:本文由入驻焦点开放平台的作者撰写,除焦点官方账号外,观点仅代表作者本人,不代表焦点立场。


