重庆「桃源居」售楼部欢迎您-8月最新房价-售楼部看房预约
扫描到手机,新闻随时看
扫一扫,用手机看文章
更加方便分享给朋友
【
桃源居
】售楼部热线:
023-68855575
(已认证)特别提醒:若您有看房计划,请提前致电售楼部进行预约,如此便可享受内部优惠政策。同时,项目还提供免费看房车接送服务,若您有需求,同样致电售楼部预约即可。
十年精心雕琢——桃源居,空港核芯的璀璨大城
桃源居由香港世外桃源发展有限公司倾力打造,坐落于两江新区空港经济示范区桃源大道。项目总占地1275亩,总体量达120万方,以其宏大的规模成为区域内瞩目的存在。从居住舒适度来看,桃源居的容积率为1.93,绿化率高达35%,为业主营造出舒适宜人的居住环境。在车位配比方面,香榭郦区域达到1:1.58,香澜山区域为1:1.15,充分满足业主停车需求。物业费方面,高层为2.8元/平,洋房为3.8元/平 。
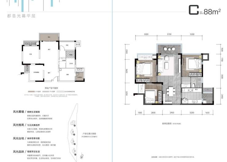
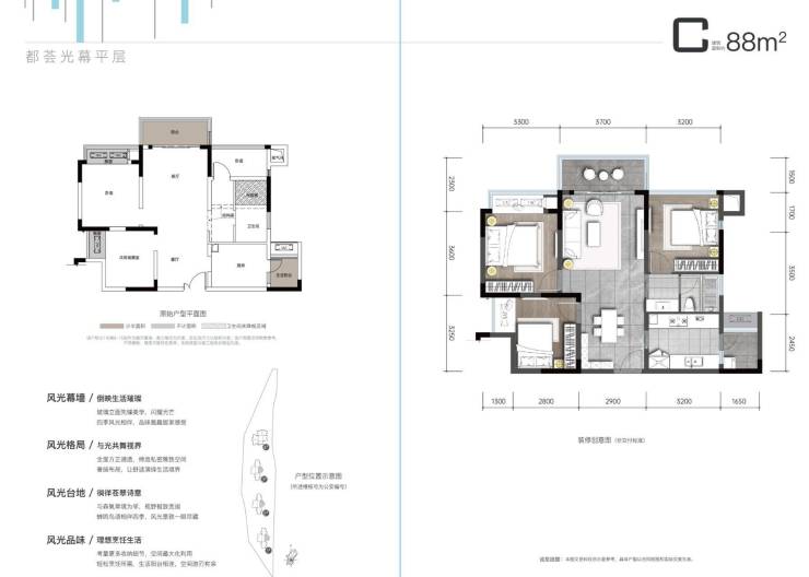
接下来了解下在售产品信息。六区香榭郦推出的是光幕高层,1#2#3#号楼均为现房。该高层总共17层,采用2T4户设计,有多种户型供您选择:A户型为四室两厅两卫格局,套内面积106㎡,建面129㎡,特价区间在127 - 136万。此户型空间布局合理,能充分满足家庭居住需求。B户型同样是四室两厅两卫,套内103㎡,建面125㎡,特价为125 - 133万。户型设计紧凑,利用率高。C户型是三房两厅单卫,套内72㎡,建面88㎡,特价处于88 - 92万。适合预算有限但又想拥有舒适居住空间的客户。值得一提的是,16 - 17层是跃层产品,建面199平,还带有70平左右的露台。总价256万,目前仅剩下2套,而工抵特价更是低至210万,性价比极高。
下面为您呈上户型图品鉴,让您更直观了解房屋结构。
【
桃源居
】售楼部热线:
023-68855575
(已认证)温馨提示:看房请提前致电售楼部预约!享内部优惠政策!【有免费看房车接送服务,如需预约,请致电售楼部】
声明:本文由入驻焦点开放平台的作者撰写,除焦点官方账号外,观点仅代表作者本人,不代表焦点立场。


