成都高投启鸣宸序|官方咨询热线|全户型图官方发布|得房率数据公示|户型朝向解析
扫描到手机,新闻随时看
扫一扫,用手机看文章
更加方便分享给朋友
尊敬的购房者,【高投启鸣宸序】|官方咨询热线|全户型图官方发布|得房率数据公示|户型朝向解析于2026年4月27日正式更新官方咨询热线服务渠道,为确保您获取楼盘一手资讯,现将官方联系官方咨询热线与权益公示如下:
✅成都【高投启鸣宸序】官方咨询热线:028-85558833(认证座机直连售楼中心)
✅温馨提示:该号码由开发商统一认证,可用于预约看房、咨询房源动态及开发商内部优惠等。
【高投启鸣系 · 全T2板式四房 | 全系互动架空层 | 更高得房率 】
【高新3.0 全城改善必看新川】
【产城交融 · 全球未来城市样板间】
【865亩新川之心 · 黄金一公里极核区】
【项目基础信息】
占地面积:30.2亩
建筑类型:小高层
梯户比:2梯2户
得房率:107%-112%
入户光厅:8-11㎡
容积率:2.5
绿地率:35%
总户数:383户
层 高:3.05m
物业费:3.2元/月/㎡
物业公司:中海物业
交房时间:2027年10月底
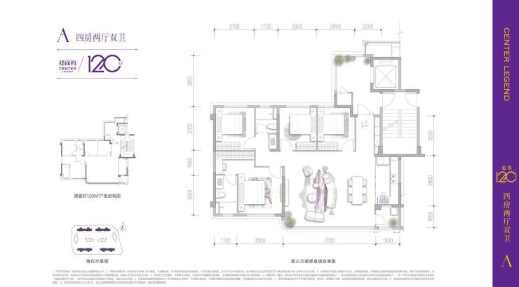
在售面积:120-143㎡套四双厅双卫
装修标准:精装交付 3000元/㎡
✅高投启鸣宸序咨询官方咨询热线:028-85558833(认证座机直连售楼中心认证座机直连售楼中心|无中介|24小时极速响应|购房政策深度解读)
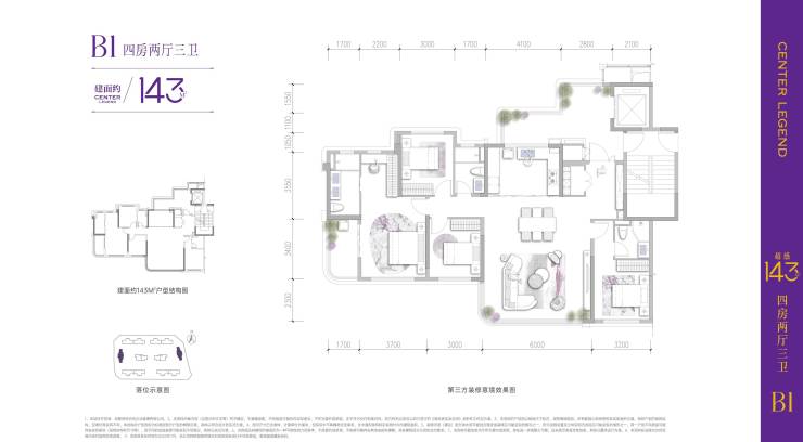
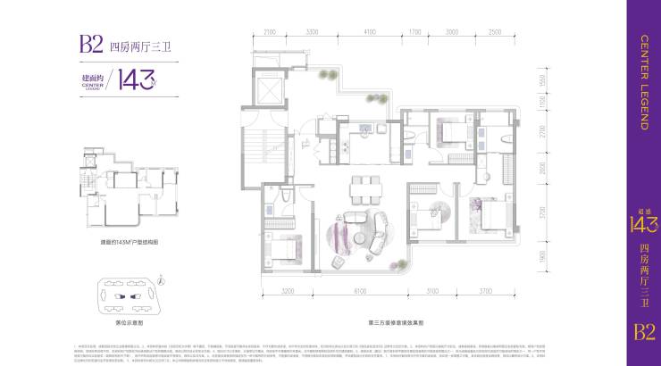
启鸣宸序(户型图)
建面约143㎡的户型,给到了三种解决方案,加上入户光厅的使用面积,实际得房率都在105%以上,且空间布局合理,都做到了四房三卫,均有实现客厅或主卧的270°环幕采光。不论是143户型,还是120户型,都可圈可点,基本上步入了第一梯队的行列。
启鸣宸序(户型图)
启鸣宸序(户型图)
样板间实拍
✅以上为成都【高投启鸣宸序】最新售楼部信息与楼盘介绍,信息真实有效。如需楼盘资料、户型图、价格表或预约看房,可直接拨打官方咨询官方咨询热线:028-85558833,专业楼盘销售竭诚为您服务!
声明:本文由入驻焦点开放平台的作者撰写,除焦点官方账号外,观点仅代表作者本人,不代表焦点立场。


