温江「爱家春和凤鸣」售楼部电话_1月最新动态_优缺点分析_在售房源详情_优惠活动
扫描到手机,新闻随时看
扫一扫,用手机看文章
更加方便分享给朋友
【爱家春和凤鸣】售楼部电话:028-85558833(已认证)
【爱家春和凤鸣】客户经理电话:13281850333(微信同号)
温馨提示:了解更多楼盘信息及最新优惠政策,请致电售楼处!
看房请提前线上致电预约,享开发商内部优惠!
【有免费看房车接送服务,预约请致电售楼中心】
【爱家春和凤鸣】纯三房产品

【项目基础信息】
项目名称:爱家春和凤鸣
项目占地:约36亩
项目总栋:8栋住宅
在售产品:98/109/107/116㎡
在售单价:13510元左右
总层高:17/25层
容积率:2.5
绿化率:30%
物业:成都市泰达物业管理有限公司
物业费:2.1元/㎡/月
车位比:1:1.44
梯户比:2T2/2T3
装修情况:清水
交房时间:预计2026年12月

【项目配套价值】
1、地铁双线•下楼即至,步行友好的高效生活配套
步行即至的凤溪河地铁站,享受地铁4号线、19号线双线(距离300米)。
2、三轴一高快捷路网,高效出行•无界全城
邻凤溪大道,光华8线,光华大道,和成温邛高速联通,全城皆能快速直抵。
3、光华活力核芯•繁华俱揽,同频一线商业能级
让逛街购物也能成为下班途中的顺道之旅。楼下就是大润发,闲逛之间就已到家。
繁华近享新光天地,合生汇,伊藤洋华堂,永辉超市等,每天逛得不重样,生活时刻保鲜。
4、一河三公园自然滋养,静赏时光漫步
茶余饭后的散步间,即抵杨柳河生态走廊,清风拂面,静享怡然。周边光华公园,凤栖湖中央公园,温江公园环伺,让生活回归自然。
5、书香诗礼•优质学府领衔,让成长天生与众不同
川师温江附属学校,东一杨柳河小学,嘉祥外国语学校等,雄厚的师资配置,开启孩子们智慧的大门。西南财经大学,成都师范学院等大学高校,营造浓郁的诗书氛围,让孩子们更主动的去享受知识。
6、安心守护•健康陪伴,给予家人更好的医靠
温江区中医院,成都市第五人民医院等,为健康生活守护。

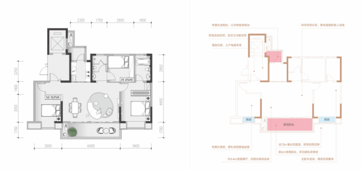
户型鉴赏
B1:约116㎡三室两厅双卫(清水)
电梯独立入户、纯板式结构、南北通透、得房率高

【爱家春和凤鸣】售楼部电话:028-85558833(已认证)
【爱家春和凤鸣】客户经理电话:13281850333(微信同号)
温馨提示:了解更多楼盘信息及最新优惠政策,请致电售楼处!
看房请提前线上致电预约,享开发商内部优惠!
声明:本文由入驻焦点开放平台的作者撰写,除焦点官方账号外,观点仅代表作者本人,不代表焦点立场。


