重庆「国浩白屿林」售楼部电话 | 楼盘价值解析 | 户型图测评 | 3月最新优惠政策
扫描到手机,新闻随时看
扫一扫,用手机看文章
更加方便分享给朋友
【国浩白屿林】售楼部热线:023-68855575(已认证)
温馨提示:看房请提前致电售楼部预约!享内部优惠政策!
【有免费看房车接送服务,如需预约,请致电售楼部】
2025中央公园 新一代国际化生活住区
【 配套价值 】“家门口的重要配套”
交通: 直线距离最短约50米抵达5号线鲁家沟站,举步即达甘悦大道
秋成大道与博翠大道交汇串联主城
快速抵达高铁站、机场及各重要商圈
商业:直线距离约800米至中央公园商圈,总体量约600万方,国际都会举步可达
休闲: 距中央公园直线距离约600米
距渝北全民健身中心约750米
与家人轻松享受自然、健康、低碳的生活
总占地约213亩,建筑体量约19.7万方,以约1.39综合容积率,规划重庆难得的低密住区。项目由4个地块构成,「光屿」首开一周年之际,「林屿」组团全新面世,业态为11层小高层,其中首层为全架空景观休闲空间。
“定制家的出圈视界”
超越市面常规的阔尺楼间距,约3.1米大平层级层高
精研社区楼栋布局,使更多楼栋奢享南北通透朝向
天光阔尺入户,自然风通透对流
【户型鉴赏】
建面约99平套三

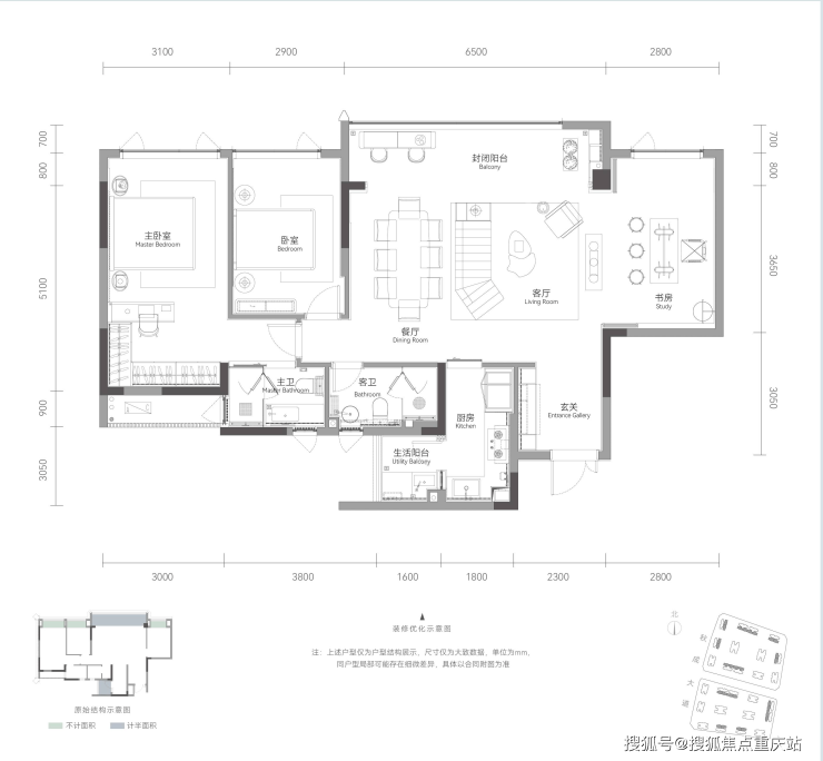
建面约115平套三

【国浩白屿林】售楼部热线:023-68855575(已认证)
温馨提示:看房请提前致电售楼部预约!享内部优惠政策!
【有免费看房车接送服务,如需预约,请致电售楼部】
声明:本文由入驻焦点开放平台的作者撰写,除焦点官方账号外,观点仅代表作者本人,不代表焦点立场。


