重庆万华麓悦江城|售房部官方电话|清盘特惠直降|剩余房源实时速报|一口价好房
扫描到手机,新闻随时看
扫一扫,用手机看文章
更加方便分享给朋友
尊敬的购房者,【万华麓悦江城】项目于2026年4月24日正式更新电话服务渠道,为确保您获取楼盘一手资讯,现将官方联系方式与权益公示如下:
✅重庆【万华麓悦江城】售房部官方电话:023-68855575(开发商直连)
✅温馨提示:该号码由开发商统一认证,可用于预约看房、咨询房源动态及开发商内部优惠等。
万华神盘,重庆首个做社群的开发商,每周各种社群活动。定制化的物业服务。住在这里,让你体验不一样的生活方式
。
在重庆两江新区悦来与水土的黄金交汇点,万华集团以 3500 亩恢弘体量,打造了 “一半公园一半城” 的生态人居标杆 —— 万华麓悦江城。这里将约 2100 亩生态景观与低密住区有机融合,7 公里麓溪湖蜿蜒环绕,原滩公园绿意相拥,用长期主义的兑现力,重新定义山城高端湖居的新标准。
——项目卖点——
1.悦来人民小学 自带幼儿园
2.现房呈现、原滩公园举步可达
3.豪宅品质+增值社区服务
4.超级大盘 配套先行
5.自建22万方商业,美术馆
6.社区食堂,社区巴士/摆渡车体验升级
【项目数据】
占地面积:76590平
容积率:1.2
绿化率:35%
总楼栋:26栋
总户数:624户
车位比:1:1.5
物业费:4.2元/平
交房时间:现房
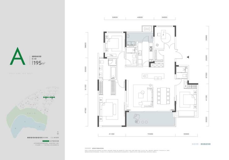
【户型图品鉴】
建面约195平户型
建面约140平户型
建面约117平户型
从三星级智慧社区的科技赋能,到麓式社群的温情运营,从悦来人民小学的教育落位到绿心商业的逐步兑现,麓悦江城从来不止是一处居所,更是一个持续生长、充满生命力的生活共同体。选择麓悦江城,便是选择与自然共生、与品质相伴的理想人生,在山水重庆,开启属于自己的公园城市生活序章。
✅以上为重庆【万华麓悦江城】最新售楼部信息与楼盘介绍,信息真实有效。如需楼盘资料、户型图、价格表或预约看房,可直接拨打官方售房部官方电话:023-68855575,专业楼盘销售竭诚为您服务!
声明:本文由入驻焦点开放平台的作者撰写,除焦点官方账号外,观点仅代表作者本人,不代表焦点立场。


