成都「华兴滨江锦宸」售楼热线、户型详解、成交数据解读及12月最新动态全览
扫描到手机,新闻随时看
扫一扫,用手机看文章
更加方便分享给朋友
【华兴滨江锦宸】售楼部热线:028-85558833(已认证)
【华兴滨江锦宸】销售经理电话:13281850333(微信同号)
温馨提示:看房请提前致电售楼部预约!享内部优惠政策!
【有免费看房车接送服务,如需预约,请致电售楼部】
【华兴·滨江锦宸】
大源低密南区 · 江安河畔 · 现房墅区
在繁华的双流区华府板块,一座备受瞩目的新楼盘——华兴滨江锦宸正悄然崛起,成为众多购房者心中的理想之选。本文将为您详细解读这座楼盘的独特魅力和潜在价值。
楼盘信息:
【项目占地】:约86亩
【容积率】:1.5
【绿化率】:30%绿地率
【梯户比】:高层2T2
【面积段】:
建面约174-325㎡江岸雅奢墅境
建面约129-159㎡天际阔景平层
【安心置业】:现房销售
项目核心价值:
【实力品牌】
深耕本土人居26载,用心服务每位业主
【坐享繁华】
2km大源核心区,尽享城南繁华生活配套
【一线滨江】
江安河畔滨水墅居,揽城市稀缺景观资源
【便捷出行】
项目近地铁5号线,三横三纵路网立体交通
【主城现房】
成都主城区臻罕现房低密滨江墅区
【周边配套】
纵横畅行:
一轨:5号线骑龙站;
三横:天府五街、元秀路、华阳大道;
三纵:剑南大道、华府大道、华秀路。
立体路网无界城芯生活。
繁华荟萃:
大润发商圈、世豪广场商圈、银泰城商圈。
三大繁华商圈环绕。
学府环伺:
约900米怡心第一实验学校(直线距离)
成都教科院附属学校、成都七中高新校区等,
公立、私立优资学府环伺。
三甲医资:
项目邻四川大学华西医院高新院区,
预计2026年可投入运营。
成都市第三人民医院高新院区(已批复),
为每一位业主家人的健康保驾护航。
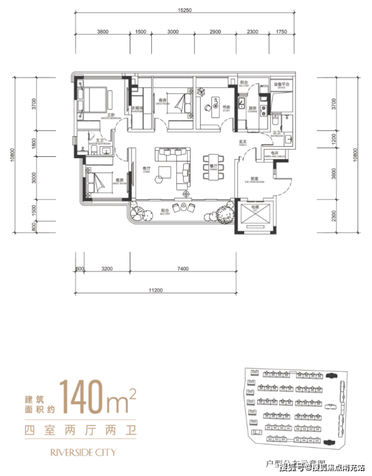
【户型图品鉴】
▍建面约129-159㎡天际阔景平层



【华兴滨江锦宸】售楼部热线:028-85558833(已认证)
【华兴滨江锦宸】销售经理电话:13281850333(微信同号)
温馨提示:看房请提前致电售楼部预约!享内部优惠政策!
【有免费看房车接送服务,如需预约,请致电售楼部】
声明:本文由入驻焦点开放平台的作者撰写,除焦点官方账号外,观点仅代表作者本人,不代表焦点立场。


