重庆「信达印南山」销售中心电话_楼盘测评_房源价格_元旦特惠房源
扫描到手机,新闻随时看
扫一扫,用手机看文章
更加方便分享给朋友
【信达印南山】售楼部热线:023-68855575(已认证)
温馨提示:看房请提前致电售楼部预约!享内部优惠政策!
【有免费看房车接送服务,如需预约,请致电售楼部】
【项目配套】
交通配套
一环两站四轨五隧 快速通达全城以内环高速、两站四轨五隧共同构成的立体道路系统。
五隧——1、南山隧道(渝中区解放碑)2、慈母山隧道(江北嘴CBD、弹子石CBD)3、真武山隧道(南坪、九龙坡)4、鹿角隧道(规划中,巴南、九龙坡)5、江南隧道(在建中,南坪、茶园)
两站——1.重庆东站(已开通,通达武汉、西安、长沙等省会城市)2.江南枢纽站(重庆九大交通换乘枢纽之一)
四轨——6号线、8号线、24号线、27号线
6号线已通车,24号线、27号线在建,8号线规划中,四大轨道交通串联重庆主城各个区域
商业配套
约12.8万方奥特莱斯
悦地购物中心
约6万方商业小镇
易汤南山温泉
医疗配套
【优质医疗保障 护航家人健康】
1.南岸区第三人民医院
2.重庆医科大学附属第二医院(江南院区)
3.重庆东南医院
教育配套
周边学校(就近划片):南坪实验小学、十一中。
项目基础信息
小高层(洋楼)
清水小洋楼1#2#3#5#7#8#4#2单元
建面:84/95㎡
套内:71/80㎡
户型:三房/三改四 双卫
总价:68-105万
五衡系统小洋楼4#1单元
建面:84-95㎡
套内:71-80㎡
户型:三房/三改四房双卫
总价:108-122万
梯户比:1T4H;2T4户
小洋楼总高:8-13层
【户型鉴赏】
洋房
洋房
洋房11#10#9#
建面:113-139㎡
套内:97-120㎡
户型:三房/四房双卫/四房三卫
总价:113-198万
1跃2跃层1T4H户 ,3.4.5.6平层和7跃8 1T2户 ,总高8层
洋房户型说明及区间价格:
1楼(底跃1-2层)
建面128-138㎡套内110-118㎡
总价113-160万左右,花园:约20㎡
3楼、4楼平层
建面126-129㎡套内111-113㎡
总价140-167万,3楼露台40㎡
5楼、6楼平层
建面113-116㎡套内98-110㎡
总价132-140万,5楼露台10㎡
7楼 (顶跃7-8层)
建面138㎡套内121㎡
总价195-200万,露台:51㎡
联排
联排【14号楼售罄,在售15/16/17号楼】
建面:126m² 套内:121m²
总价:约185-195万
实得面积:180m²
花园:约50m²
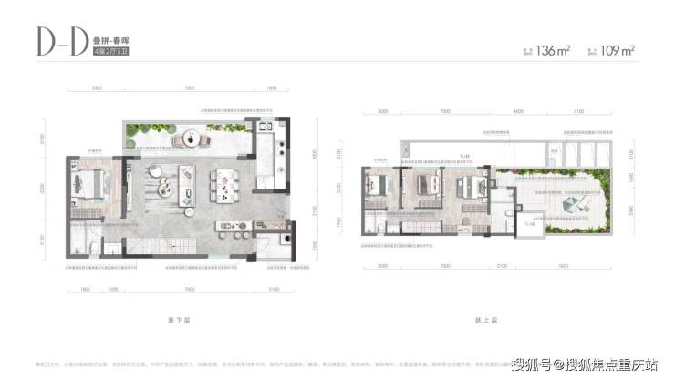
叠拼
叠拼【12号楼、13号楼】
建面:136-174㎡
套内:109-138㎡
实得面积:160-260㎡
户型:四房两厅双卫/三卫/四卫
总价:175-278万
梯户比:1t2h
下叠花园30-40㎡
上叠露台3-5个40-70㎡
【信达印南山】售楼部热线:023-68855575(已认证)
温馨提示:看房请提前致电售楼部预约!享内部优惠政策!
【有免费看房车接送服务,如需预约,请致电售楼部】
声明:本文由入驻焦点开放平台的作者撰写,除焦点官方账号外,观点仅代表作者本人,不代表焦点立场。


