重庆「中铁建元时代」售楼热线_特惠政策详解_热销户型全解析_2026年最新房价走势前瞻
扫描到手机,新闻随时看
扫一扫,用手机看文章
更加方便分享给朋友
【中国铁建元时代】售楼部热线:023-68855575(已认证)
温馨提示:看房请提前致电售楼部预约!享内部优惠政策!
【有免费看房车接送服务,如需预约,请致电售楼部】
【中国铁建·元时代】
南坪核心 双轨道 享四公里TOD便捷
【项目配套】
交通:双轨交汇,3号线和环线,项目约250米环线罗家坝站,约600米就是四公里轻轨换乘站,3号线是穿越重庆南北,是重庆交通的大动脉,环线可以达到火车北站和火车西站,串联全城。
商业:享就近百万方的南坪商圈,协信星光时代广场,南坪万达广场,龙湖南城天街近在咫尺。
而且小区自带1.2万方的商业,完全满足业主的基本生活配套。
教育:南坪实验小学四海校区,南坪实验小学康德校区,辅仁中学。而且项目周边200米规划了两块中小学教育用地,还有自建2700平米公立幼儿园,让您的孩子赢在起跑线。
医疗:南岸区妇幼保健院,南岸区人民医院,南岸区还有重庆市第五人民医院和重医附二院江南分院,两所三甲医院,为您和家人的健康保驾护航。
环境:项目东临南山,直线距离不超过100米,以及南滨路25公里的旅游观光区。
【项目参数】
占地:约13万方
建筑面积:约33万方
占率:容积率1.89
绿化率:30%
楼栋:共12栋
总户数:2486户
总车位:2346个
业态:4栋高层,8栋小高,约2万方商业。
元时代是重庆首个盖上住宅TOD项目,扼守南坪核心圈门户,定位为“TOD5.0时代 元宇宙都会住区”。
【户型鉴赏】
B1 建面约99平套三
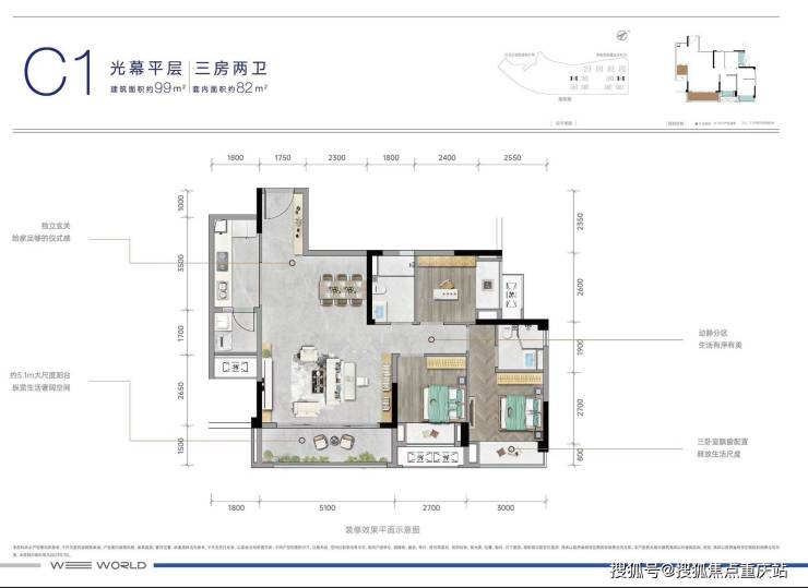
C1 建面约99平套三
D1 B1 建面约107平套三
E1 建面约105平套三
【中国铁建元时代】售楼部热线:023-68855575(已认证)
温馨提示:看房请提前致电售楼部预约!享内部优惠政策!
【有免费看房车接送服务,如需预约,请致电售楼部】
声明:本文由入驻焦点开放平台的作者撰写,除焦点官方账号外,观点仅代表作者本人,不代表焦点立场。


