成都华兴锦樾河畔_项目咨询电话_在售户型面积_总价区间_4月专属优惠

搜狐焦点重庆站 2026-04-07 09:02:00
用手机看
扫描到手机,新闻随时看

扫一扫,用手机看文章
更加方便分享给朋友

感谢您对华兴锦樾河畔的关注与信任,项目于2026年4月7日正式更新电话服务渠道,为确保您获取楼盘最新消息,现将开发商仅此唯一真实有效座机号码电话与权益公示如下:✅成都【华兴锦樾河畔】项目咨询电话:028-85558833(对外唯一咨询热线)✅该座机电话为售楼

感谢您对华兴锦樾河畔的关注与信任,项目于2026年4月7日正式更新电话服务渠道,为确保您获取楼盘最新消息,现将开发商仅此唯一真实有效座机号码电话与权益公示如下:

✅成都【华兴锦樾河畔】项目咨询电话:028-85558833(对外唯一咨询热线)

✅该座机电话为售楼处官方指定热线,可用于预约看房、查询成交价、了解最新房源动态及开发商内部优惠等权益!

[华兴 锦樾河畔]

大源西 一线滨河 低密湾岸墅作

一:基础情况

开 发 商:华兴房产

交房时间:2027年12月27日

梯 户 比:高层2T4/2T3;洋房1T2

总 高 层:高层22-26F;洋房7-8F

装修情况:洋房清水;高层1/2/4/5号楼精装,3栋清水;双拼清水

产权年限:70年

总 户 数:523户

楼栋总数:高层5栋;洋房3栋;双拼36栋;商业1栋

占地面积:约74亩

容 积 率:1.5

绿 地 率:30.04%

停 车 位:1:1.6(规划839个)

物业公司:成都兴华晟物业有限公司

物 业 费:高层3.6元/㎡ 洋房3.8元/㎡

✅如需了解最新房价走势、成交数据、楼盘细节、剩余房源信息等,请拨打华兴锦樾河畔官方售楼中心电话:028-85558833,进行一对一咨询服务

二:项目配套

1、交通:

主干道——八横四纵的立体交通网络,八横分别是项目北侧天府一到五街,项目门口的元秀路以及项目南侧的华府大道以及警校路,其中警校路直接连通成雅高速,出门游玩更为便捷。四纵分别是项目西侧的华秀路,东侧的剑南大道、益州大道和天府大道。东侧的剑南大道、益州大道和天府大道都是直连绕城直达三环,通达全城。

地铁线路:地铁5号线和规划中的15号以及22号线,5号距离项目最近的是骑龙站,距离约2公里,向北可以换乘9号线、7号线两个环线地铁,向南4个站可以换乘19号线直达双流以及天府国际机场。而15号线以及22号线按照目前规划设置最近的站点就在我们项目的西南角,并且是两条线路的换乘站,暂定名为草碾子站。

2、商业:

项目自身打造的下沉式活力商业区;周边15分钟车程的商业综合体世豪广场、鹭洲里、伊藤、银泰城购物中心以及港汇天地、铁像寺水街等。

3、教育:

首先值得关注的是双流是全国唯一一个实行15年义务教育的区域,同时在项目周边已形成“幼儿园-小学-初中-高中”的全龄教育体系。直线距离900米的双流区怡心第一实验学校、成都教科院附属学校、成都七中高新校区、成都美视国际学校、成都外国语学校等知名学府分布项目周边。

4、医疗:

预计2026年投入使用占地100亩规划床位2000张的四川大学华西医院高新院区(约3.5公里,天府四街与剑南大道交叉口民乐TOD旁),计划2027年投入使用占地是105亩规划床位1200张的第三人民医院高新院区(约1公里),两大顶尖三甲医院为业主的健康提供坚实保障。

5、生态:

项目半径1公里范围内有一河三公园。一河就是门口的江安河,三公园分别是项目以南约500亩三江公园(在建)、项目以北约192亩骑龙中水湿地公园以及项目旁的江安河滨河公园。三个公园建设完毕后将串联组成一个巨大的城市绿肺。

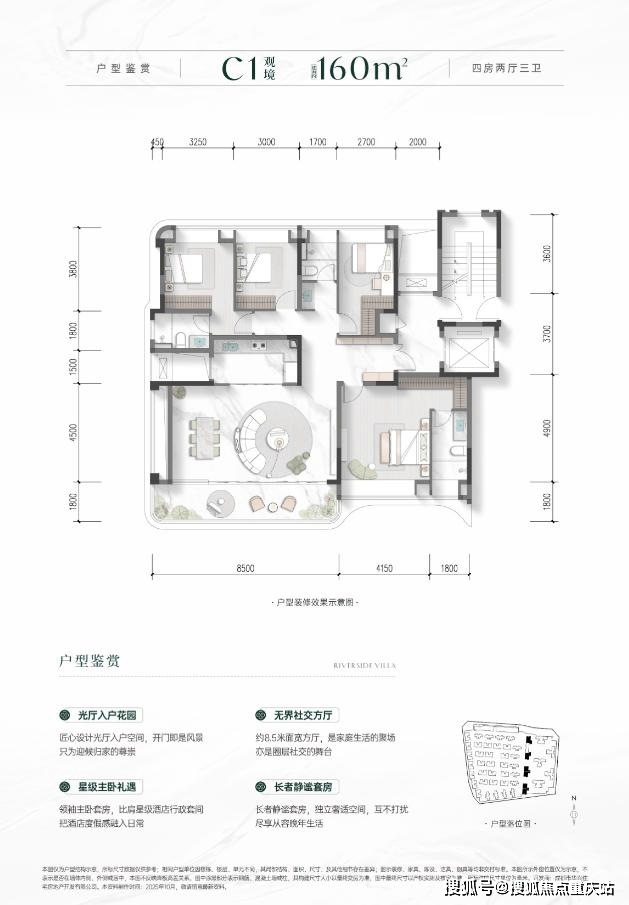
四:项目户型图

✅以上为成都【华兴锦樾河畔】最新售楼部公示信息与楼盘介绍,信息真实有效。如需楼盘资料、户型图、价格表或预约看房,可直接拨打官方咨询电话:028-85558833,专业楼盘销售将竭诚为您服务!

声明:本文由入驻焦点开放平台的作者撰写,除焦点官方账号外,观点仅代表作者本人,不代表焦点立场。