重庆「东亚白云湖」售楼处电话|楼盘最新动态|项目深度测评|业主真实评价|户型解析|区位优势解读
扫描到手机,新闻随时看
扫一扫,用手机看文章
更加方便分享给朋友
【东亚白云湖】售楼部热线:023-68855575(已认证)
温馨提示:看房请提前致电售楼部预约!享内部优惠政策!
【有免费看房车接送服务,如需预约,请致电售楼部】
东亚·白云湖 【二期新产品】
科学城正核 约1300亩私密湖山墅区
【项目配套】
✈️交通配套:“1机场4高铁3城际4快线3轨道8高速”,距离正兴国际机场约15km,一隧之隔直达科学城核芯金凤城市中心,距离市域铁路永川线(青杠站)约2.8公里。
?商业配套:项目自带约2万方的商业街,分布在项目西侧及东侧,是璧山最大规模的项目商业配套,目前,风情商业街已经招商入驻。
?教育配套:项目自带超2600平米国际双语幼儿园。青杠小学,青杠中学(市重点、初中),来凤中学(市重点、初高中),求精中学(市重点、高三),分别就在项目两旁,从小学到中学一站式配齐。
?医疗配套:项目周边有:重医养护中心,妇幼保健院,璧山人民医院等,雄厚医资护航,臻心守护。
?自然配套:项目内部一线环绕约10万方白云湖,毗邻约7600公顷缙云山脉。周边一坊两寺三古迹经典资源:何氏百岁坊、佛荫寺、妙音寺、大圆详博物馆、三道碑、成渝古道。

【项目卖点】
低密湖山别墅区:科学城区域少有的在售收藏级一线低密湖山大盘,规划合院、叠墅、洋房产品业态全,套总价低,项目没有规划高层,整体容积率低于0.6。
一面六境多节点园林:从《江山秋色图》中汲取灵感,充分考虑和利用项目地形优势,构建【山、溪、林、谷、岛、湖】六大空间场景,打破建筑与自然的隔阂,以多元场景,为居者重构一处纯粹的自然悠居。
【基础信息】
?集团:北京东亚新华投资集团有限公司
?建设用地面积:858789.00㎡
?️总建筑面积:456042.33㎡
?容积率:约0.43
?绿化率:51.44%
⭐️项目期数:2期
?交付标准:毛坯
?️项目总户数:1871户
?车位总数:2694个
?♂️物业公司:东亚时代物业管理有限公司
?物业管理费:洋房:2.6元/平方米;别墅:3.5元/平方米
【户型鉴赏】
A户型 岛居合院 建筑面积约226㎡
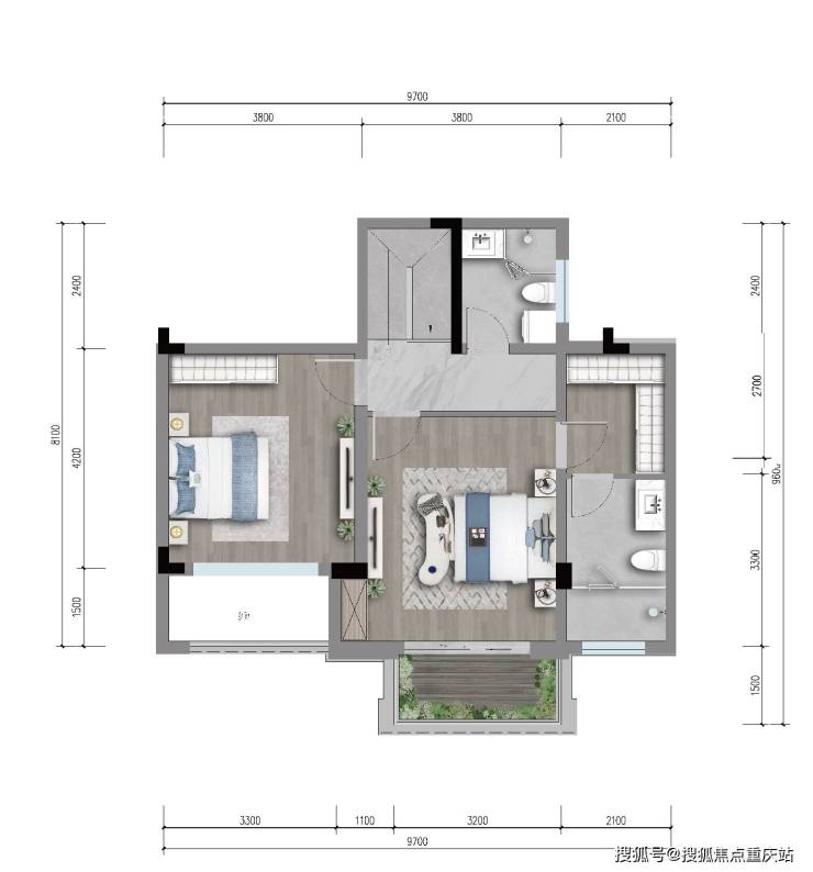
G2户型 隐山叠墅 建筑面积约130㎡
【东亚白云湖】售楼部热线:023-68855575(已认证)
温馨提示:看房请提前致电售楼部预约!享内部优惠政策!
【有免费看房车接送服务,如需预约,请致电售楼部】
声明:本文由入驻焦点开放平台的作者撰写,除焦点官方账号外,观点仅代表作者本人,不代表焦点立场。


