成都「湖山春晓」售楼处热线|十月楼市走势前瞻与当前房价深度解析|在售户型全览及限时优惠独家解读
扫描到手机,新闻随时看
扫一扫,用手机看文章
更加方便分享给朋友
【湖山春晓】售楼部热线:028-85558833(已认证)
【湖山春晓】客户经理电话:13281850333(微信同号)
温馨提示:为了给您提供更高更好的接待服务质量,看房请提前致电售楼部预约!
【有看房车接送服务,如需预约,请致电售楼部】
【项目卖点】
1、项目是继荣获“亚洲生态人居示范奖”的亚特兰蒂斯·黄金时代,集英国ATKINS、美国WATG、美国DAHLIN、加拿大FORREC、英国SAVILLS等全球顶级设计“梦之队”首度联袂打造超越时代的“三圈层——王宫、乐土、城邦后的大陆希望集团又一经典之作。
2、六个4A级景区环抱,负氧离子高。
【项目配套】
产业:
位于天府城南副中心、滨江花园城——新津区,联动天府新区、高新区、双流区飞速发展,大批智能制造产业和世界500强企业入驻。比如格力智能制造产业园、银隆新能源成都产业园、中国中车、中国电建等。
? 生态资源:
左临梨花溪茂林修竹、绿荫扶疏,右依老君山仙山圣地、峰峦叠嶂,揽2000年通济古堰流水蜿蜒,约17万平米的私域内湖散落其间。
交通:
三横五纵三轨的立体交通体系,紧邻岷江大道,距成雅高速仅约1公里;
希望·奥特莱斯购物专线、508、XK4路公交
地铁10号线已经通车。目前10号线三期工程已经开工,预计2023年从新津无需换乘就可到达人民公园
商业:出门即达希望·奥特莱斯,汇聚来自全球的主流国际品牌。包括重奢、轻奢、时尚设计师品牌,运动休闲品牌、儿童用品、美食广场等。
医疗:四川骨科医院天府新区分院、华西医院天府院区、成都京东方医院等多重医疗保障。
教育:汇聚墨尔文国际学校、龙江路小学、成都外国语学校等全龄优质教育。
【项目参数】
大平层:157、174、214平(赠送15平)
单价:5500起元/㎡
总价:90万起。
所在楼栋:1#-1、1#-2
叠拼别墅:80-132 ㎡,实得:190-362㎡。
单价:1.1—2.4万元/㎡,实得单价5500元/平
总价:107起万元。
花园10-123平
公摊:大平层24%,叠墅28%—30%。
梯户比:平层3T5电梯直接入户叠院:1T2户
单层高:大平层层高3.15米,叠拼层高5.9米
总层高:大平层:14层,叠拼:4层
占地面积:19326平方米。
车位比:1:1.3
交付标准:清水交付
首付:5成
交房时间:2023.12.28
物业:成都希望波塞物业管理服务有限公司
物业费:大平层2.8元,叠墅3.5
产权年限:40年
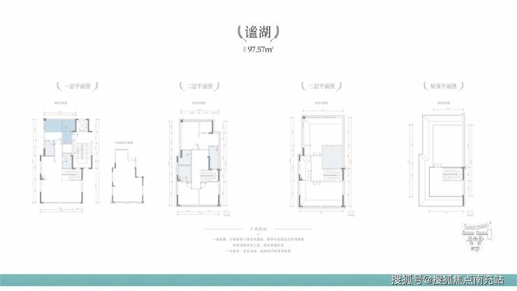
【户型图】
大平层:157平,174平、214平
大平层A3户型,建筑面积157㎡,价格区间89.6万-133.75万。
大平层A2户型,建筑面积174平方米,价格区间103.4万-172.72万;
大平层A1户型,建筑面积212-214㎡,价格区间120.9万-190.51万;
叠拼别墅:80-132 ㎡,实得面积:190-420㎡。
【湖山春晓】售楼部热线:028-85558833(已认证)
【湖山春晓】客户经理电话:13281850333(微信同号)
温馨提示:为了给您提供更高更好的接待服务质量,看房请提前致电售楼部预约!
【有看房车接送服务,如需预约,请致电售楼部】
声明:本文由入驻焦点开放平台的作者撰写,除焦点官方账号外,观点仅代表作者本人,不代表焦点立场。


