成都「华侨城七十二院」值得买吗?楼盘测评-8月最新销售价格
扫描到手机,新闻随时看
扫一扫,用手机看文章
更加方便分享给朋友
华侨城七十二院,一处独具魅力的居住胜地,现将为您全方位介绍。首先,为您提供重要联络信息:【
华侨城七十二院
】售楼部热线:028 - 85558833(已认证)【
华侨城七十二院
】项目客户经理电话:13281850333(微信同号)温馨提示:若您有看房计划,为了能享受到更高品质、更贴心的接待服务,请提前致电售楼处进行预约!同时,项目还提供免费看房车接送服务,若您有此需求,同样请致电售楼处预约。华侨城·七十二院坐落于洛带,地理位置得天独厚。它东依龙泉山城市森林公园,北靠国家4A级景区洛带古镇,西临洛水湿地公园,南望千亩蔚然花海。该项目以客家人历史上的五次大迁徙作为文化背景,巧妙萃取中国建筑的经典元素,将闽、海、川、晋、徽五大建筑派系的院落特色相互融合。通过精心布局街道、巷弄与庭院,淋漓尽致地展现出中国传统建筑之美,每一处细节都凝聚着深厚的文化底蕴,仿佛在诉说着古老的故事。【项目基础信息】 - **项目位置**:位于成都市龙泉驿区洛带三峨街999号。 - **占地面积**:约200亩,规模适中,为打造高品质居住环境提供了充足空间。 - **物业公司**:由华侨城物业(集团)有限公司成都分公司负责管理,以专业、贴心的服务,为业主的生活保驾护航。 - **水电气收费**:水4.3元/、电0.79元/、气2.59元,合理的收费标准,让生活成本更易掌控。 - **建筑面积**:涵盖200—500平多种户型,满足不同家庭结构与居住需求。 - **总价区间**:300万—1000万(特价178万起),多样化的价格选择,为购房者提供了更多可能性。 - **赠送花园**:每户赠送80 - 300平的花园,让您拥有一片专属的自然天地,享受惬意时光。 - **容积率**:仅0.65,低容积率意味着更宽敞的居住空间和更高的舒适度。 - **物业费**:5元/㎡,与高品质的物业服务相匹配。项目为现房,即买即可装修入住,而且实现了水电气三通,生活便捷无忧。项目区位图:
【周边配套】 - **交通**:周边交通网络十分发达。城市主干道纵横交错,像成都五环路(成环路)、成洛大道、渝蓉高速、蜀都大道等,为您的出行提供了多种选择,无论是前往城市各处还是出城远行都极为便利。公交出行也很方便,219路、850路、K7快速公交等十余条公交线路,进一步提升了出行的灵活性。值得一提的是,项目距离双流机场、天府国际机场均约40km,仅需40分钟即可开启全球之旅。 - **生态**:周边生态资源丰富,龙泉山城市森林公园、洛水湿地公园、蔚然花海(4A级景区)环绕,让您时刻亲近大自然,享受清新的空气和优美的自然风光。 - **学校**:教育资源完善,有龙泉驿区洛带第二幼儿园、洛带小学、洛带中学等基础教育学府,同时成都康礼·克雷格公学(建设中)也将为区域教育注入新的活力,为孩子的成长提供良好的教育环境。 - **医院**:医疗配套齐全,龙泉驿区第二人民医院、洛带公立卫生院、龙泉驿区第一人民医院、龙泉驿区妇幼保健院、四川省人民医院东院等医疗机构,为您和家人的健康提供有力保障。 - **休闲**:休闲娱乐场所众多,洛带古镇(4A级景区)充满历史文化韵味,中国艺库商业街则提供丰富的购物、娱乐体验,满足您多样化的休闲需求。【产品介绍】 - **闵派**:自持商业院落,面积段在30 - 300㎡之间,旨在打造充满活力的城市商业步行街,为业主带来便捷的商业生活体验。
- **海派**:自持商业院落,面积段为300 - 3000㎡,将打造具有中法特色风情的街道,让您在家门口就能领略异国风情。
- **川派**:为在售合院,面积段200 - 500㎡,均价约15800元/平,总价段300 - 900万。其独特的建筑风格与布局,深受购房者喜爱。
- **晋派**:同样是在售合院,面积段400 - 600㎡,均价约17800元/平,总价段680 - 1000万,彰显出独特的地域建筑魅力。
- **徽派**:面积段210 - 350㎡,均价约15000元/平,总价段300 - 520万,精致细腻的建筑工艺,尽显江南水乡韵味。
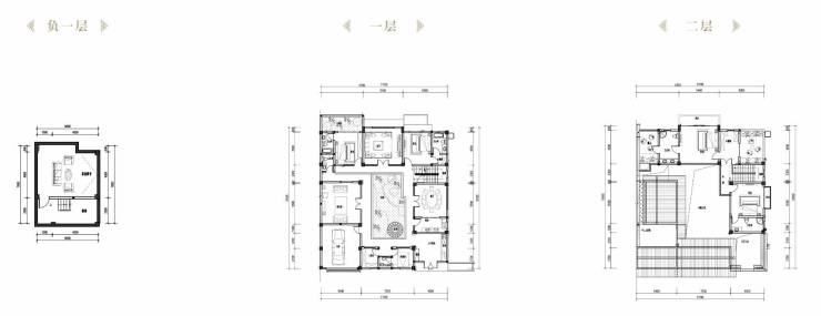
【户型鉴赏】 - **川派**:明月府9 - 2#(建筑面积373.17㎡,实得面积约513㎡),空间布局合理,宽敞舒适。
- **川派**:南风院6 - 3#(建筑面积369.13㎡,实得面积约513㎡),设计巧妙,功能齐全。
- **川派**:千虹院12 - 5#(建筑面积448.24㎡,实得面积约633㎡),大空间设计,满足您对品质生活的追求。
- **川派**:虹霓院13 - 2#(建筑面积370.09㎡,实得面积约514㎡),布局精巧,营造出温馨舒适的居住氛围。
华侨城七十二院凭借其独树一帜的建筑风格、浓郁深厚的文化底蕴以及与时俱进的现代化设计理念,已然成为成都乃至全国闻名的旅游和居住胜地。在这里,您既能深切感受到中国传统建筑所蕴含的独特韵味,又能尽情享受现代化居住带来的舒适体验。倘若您正在寻觅一处既能让身心得到栖息,又能尽情领略自然与文化魅力的理想居所,那么七十二院无疑是您的不二之选。【
华侨城七十二院
】售楼部热线:028 - 85558833(已认证)【
华侨城七十二院
】项目客户经理电话:13281850333(微信同号)温馨提示:为了给您提供更高更好的接待服务质量,看房请提前致电售楼处预约!【有免费看房车接送服务,如需预约,请致电售楼处】
声明:本文由入驻焦点开放平台的作者撰写,除焦点官方账号外,观点仅代表作者本人,不代表焦点立场。


