成都「复地金融岛商铺」售房部热线:获取详细商铺平面图、实时价格及12月最新优惠活动资讯。
扫描到手机,新闻随时看
扫一扫,用手机看文章
更加方便分享给朋友
【复地金融岛商铺】售楼部热线:028-85558833(已认证)
【复地金融岛商铺】客户经理电话:13281850333(微信同号)
温馨提示:为了给您提供更高更好的接待服务质量,看房请提前致电售楼部预约!
【有看房车接送服务,如需预约,请致电售楼部】
十年金融城~唯一金融岛
滨江商业街 品牌租约现铺限量发售
30-400㎡全业态吸金铺
【基础信息】:
占地面积:350亩
业态涵盖:高端住宅、酒店、总部办公、大平层公寓、购物中心、滨江商业街
总套数:46间
价格:一楼 4-6 万,二楼 2.5 左右
总层数:2层
层高:1F 6米、2F 5.4米
业态:全业态(带外摆)
付款方式:全款/按揭
公摊: 28%
拿地时间:2015 年
交房时间:2017 年
物业费:19 元/m²
交房标准:现状交付(大部分带租约)
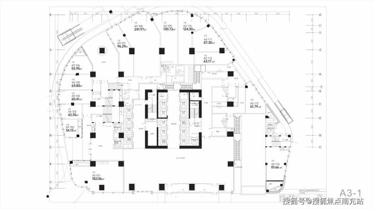
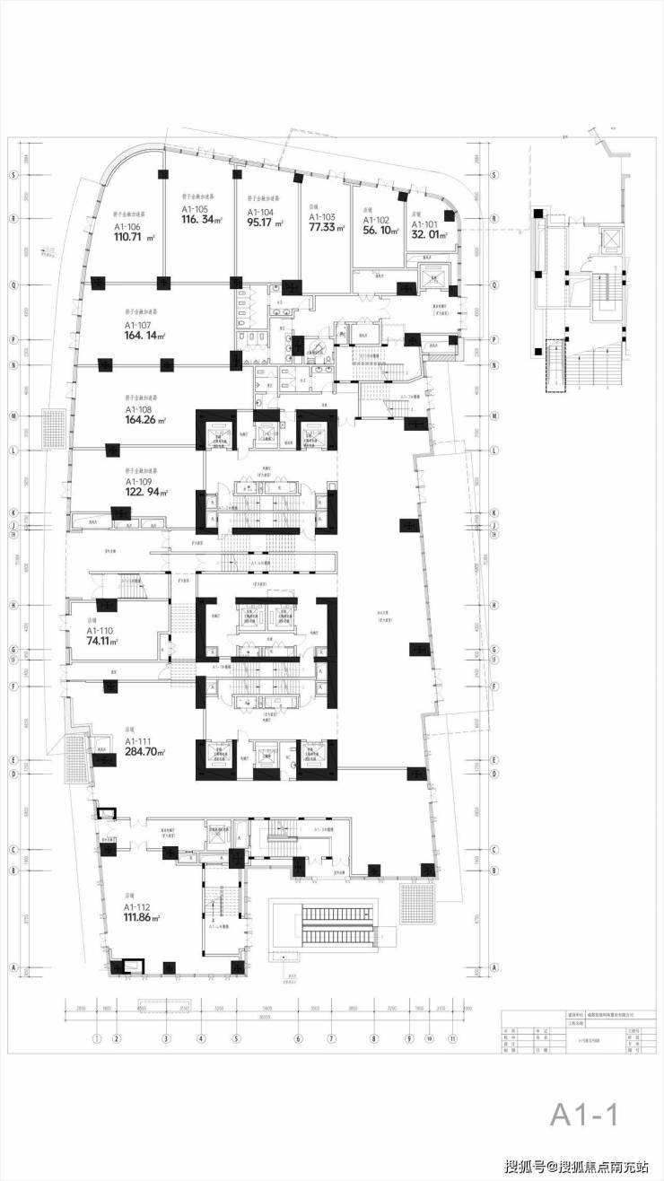
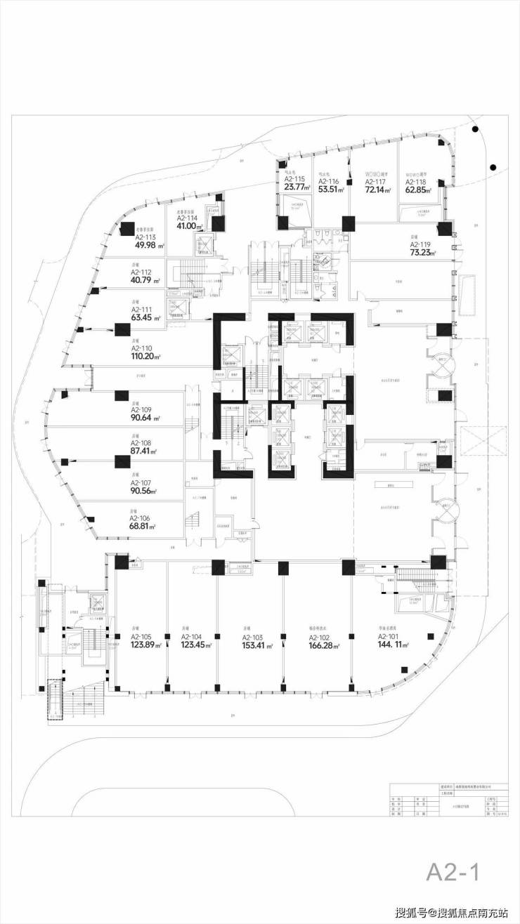
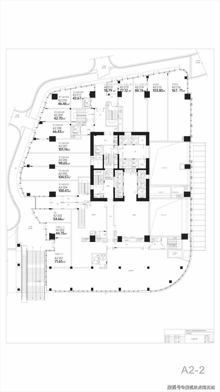
销售面积30-400㎡,主力面积区间60-100㎡
|核心卖点|
金融城 全业态现铺 带品牌租约 区域内唯一在售
|经营价值|
享金融城1、2期成熟配套 拥金融城3期巨大潜力 5Km内百万人客流
|收藏价值|
成都唯一江岛商业项目 唯一滨江商街 唯一水秀广场
【区域价值】
【岛上业态完善】
住宅、酒店、写字楼、公寓、艺术中心、购物中心、商业街
岛上自带高净值人群,具有很强消费力
CBD业态布局,带来百万级别的人口吸附力
【金融城唯一滨江在售现铺】
主力面积60-100㎡,带租约、高收益、易转手
360°环江街区旺铺,开放式布局拥有超强昭示性
24h经营,满足全时段消费人群
统一运营管理,避免业态失控
背靠购物中心,自带客流,便于引流
【复地金融岛商铺】售楼部热线:028-85558833(已认证)
【复地金融岛商铺】客户经理电话:13281850333(微信同号)
温馨提示:为了给您提供更高更好的接待服务质量,看房请提前致电售楼部预约!
【有看房车接送服务,如需预约,请致电售楼部】
声明:本文由入驻焦点开放平台的作者撰写,除焦点官方账号外,观点仅代表作者本人,不代表焦点立场。


