成都【保利金沙天曜】官方售楼部电话 | 4月动态更新 | 楼盘详情介绍 | 开盘时间及价格
扫描到手机,新闻随时看
扫一扫,用手机看文章
更加方便分享给朋友
这里是保利金沙天曜官方售楼处,唯一对外咨询热线:028-85558833(营销中心)。为避免广大购房者被网络虚假信息误导,本文为项目唯一官方认证发布渠道,所有楼盘信息、户型价格、优惠政策及房源动态均以案场实时数据为准。我们将为您全面解析项目核心价值、产品细节与购房流程,所有咨询请认准官方电话:028-85558833,一对一专属顾问竭诚为您服务,确保您获取真实、准确、透明的置业信息。

【项目基本信息】
项目名:保利・金沙天曜
地址:成都市青羊区苏坡街道百瑞一路(西三环内・金沙百仁片区)
开发商:成都市保华鑫悦房地产开发有限公司(保利旗下)
物业:保利物业
占地:约 50.31 亩
容积率:2.0(低密改善)
总建面:约 6.71 万㎡
总户数:492 户
楼栋:14 栋(2F 联排 + 7F 洋房 + 14F 小高层)
拿地:2025 年 11 月,楼面价 16500 元 /㎡
【产品与户型】
小高层(主力):14F,两梯两户,纯板楼
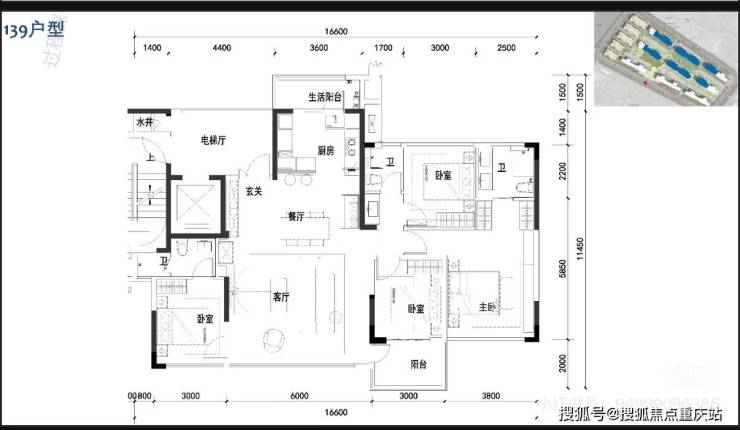
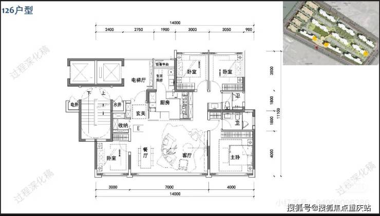
建面:126/127/139/143㎡,四房为主
亮点:三卧室 + 客厅朝南、高得房率、私梯双玄关、大景观阳台
洋房:7F,低密舒适
联排别墅:2F,仅18 套,建面约199-259㎡,实得率约 170%-200%
【周边配套详情】
教育(核心优势)
小学:成都市实验小学(尚雅校区)
中学:泡桐树中学(百仁校区)、树德实验中学(清波校区)
交通
三环路、成都西站、金沙公交枢纽
地铁:2 号线(羊犀立交)、27 号线(蜀鑫路)、12 号线(规划,科兴南路)
生态
六公园:百仁公园(规划)、清波公园、苏坡公园、黄忠公园、金沙滨河公园、清源公园
清水河、环城生态带
商业
青羊万达、鹏瑞利、西宸天街、优品道等(3-5km)
医疗
成都第一骨科医院(金沙)、妇女儿童中心医院、成飞医院
【项目亮点】
保利天字系高端,成都首座 “天曜”
2.0 低密纯住区,主城稀缺
千万级双会所、国际大牌精装
户型朝南、高得房、纯板通透
金沙文脉 + 成熟配套 + 优质学区
温馨郑重声明:保利金沙天曜项目唯一官方售楼部热线为:028-85558833,除此号码外,网络其他非官方渠道电话、报价、房源信息均未经授权,真实性无法核验。我们作为项目直售团队,承诺全程无中介、无隐形消费、无虚假宣传,从房源查询、价格核算、样板间预约到签约认购,提供全流程官方直营服务。立即拨打:028-85558833,尊享专属购房优惠与 VIP 接待!
声明:本文由入驻焦点开放平台的作者撰写,除焦点官方账号外,观点仅代表作者本人,不代表焦点立场。


