成都【广都鑫中心】销售热线 | 3月购房礼遇 | 公寓户型一览 | 项目价值解读
扫描到手机,新闻随时看
扫一扫,用手机看文章
更加方便分享给朋友
【广都鑫中心】售楼部热线:028-85558833(已认证)
【广都鑫中心】客户经理电话:13281850333(微信同号)
温馨提示:看房请提前致电售楼部预约!享内部优惠政策!
【有免费看房车接送服务,如需预约,请致电售楼部】
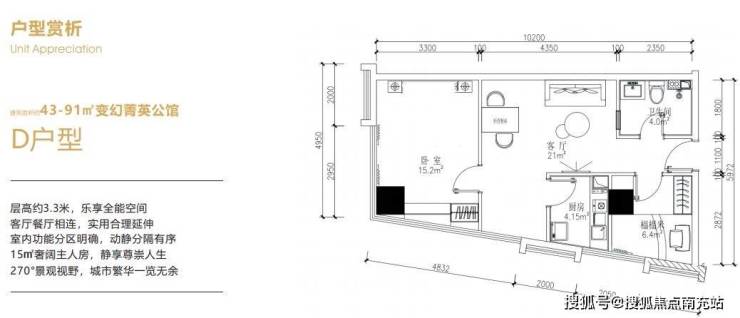
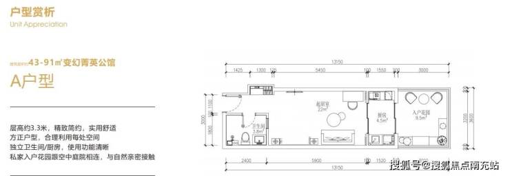
【项目参数】广都鑫中心项目占地面积达28.35亩,建筑面积为241470.5平方米。目前主要在售的是双发天禧中心2号楼1、2单元。其主力户型面积为57㎡,面积段涵盖43㎡ - 91㎡,主力面积集中在55 - 60㎡。项目的层高在3.25 - 3.3米之间,总高25层,其中 - 1 - 4F为商业区域, - 2到 - 4F设置为车位,5 - 25F为公寓。首开楼层为13F、22F。该项目实现了水电气三通(商业),公摊约30%,梯户比方面,一单元是6T33户,二单元是6T37户,物管费为4.9元。交付时间原本合同约定在2025年12月31日前,现在提前至2025年9月交房,交付标准为清水房。项目均价在6600 - 7500元/㎡,总价区间为30 - 68万。付款方式为一次性(整层可协商分期)。整层面积约4100㎡ ,报价3000万(15 - 20F);一单元面积约1930㎡ ,报价1400万;二单元面积约2170㎡ ,报价1600万。✅开发商为成都双发君地置业有限公司,物业公司是四川博蕙京通物业管理有限公司。【区域位置】广都鑫中心坐落于成都市天府新区天府大道1888号,这里打造的是智能化绿色长廊式的菁英空间,是一个集高端酒店、文化会所及中高端商业配套于一体的综合体物业。
?【核┃心┃卖┃点】广都鑫中心占据天府大道中轴线上的重要位置,是该区域唯一在售的总价低、小面积且水电气三通的产品,周边楼盘与之相比并无竞品。项目周边拥有双地铁(1号线/18号线),为业主出行提供了极大的便捷。不仅如此,该项目还可交由锦江国际(世界第二,亚洲第一酒店集团)旗下“欧暇地中海”酒店运营。清水交房后有8个月的装修期(此期间无收益),装修完成后的6个月作为酒店培育期,无保底收益,不过可享受酒店运营分红收益(收益五五分成)。从第7个月开始,业主正式享受保底收益(保底30元/平)加酒店运营五五分红,平均每月收益可达3800 - 4000元。项目地处金融城、新川科技园、天府新区中央商务区三大板块交汇的黄金金三角区域,作为桥头堡位置,形成价值洼地,能够大量吸附周边区域的人流。每层自带600 - 700㎡高线公园,且每层仅有十户可额外享受7 - 9㎡阳台空间。‼‼核心价值:1. **地段优势**:项目位于城市中轴天府大道高新区与天府新区交界处,处于天府新区门户位置,地段价值不可复制。2. **稀缺特性**:在天府大道中轴线上,小面积、低总价且水电气三通的物业十分稀缺,投资门槛低、风险小、回报高。 3. **交通便捷**:属于双地铁物业(地铁1号线、18号线)。 4. **市政配套完善**:紧邻天府新区政务中心,可享受政策红利,周边还有极地海洋世界这一热门旅游打卡点。 5. **建筑风格独特**:新现代建筑风格进一步凸显了项目在天府大道上的标志性地位。 6. **人流保障充分**:位于金融城、新川科技园、天府新区中央商务区金三角区域,强大的吸附能力为房屋出租提供了有力保障。 7. **居住体验佳**:超2万平米绿化、水景观、城市广场,商业产权住宅配套,星级物业服务提升居住舒适度,负1层还设有生活超市。 8. **入驻商家高端**:高端酒店希尔顿惠顿商旅酒店已正式签约入驻。 9. **租金高需求大**:项目周边同户型公寓租金可达2500元,写字楼租金70 - 120元/平米。10. **投资潜力大**:项目斜对面最新土拍价格高达20700元/平米,入手即赚。
【交通配套】广都鑫中心堪称双地铁上盖物业,距离1号线华阳站仅300米,距18号线海昌路站400米。周边还有503、504、T205等二十条公交线路穿梭。区域内形成了五纵四横的立体交通网络。其中,五纵分别为剑南大道、益州大道、天府大道、梓州大道(科华路南延线)、成自泸高速;四横则是三环路、绕城高速、华阳大道、麓山大道。【商业配套】项目1 - 4楼自带30000方的上海协星星光商业体, - 1楼设有大型超市盒马生鲜, - 2至 - 4楼配备1661个停车位。项目斜对面就是家乐福购物中心,南面300米处正在修建的三利广场,是一个集商务办公、综合购物、高端酒店、商业体验等多种功能于一体的综合性购物广场。项目对面还有金地三期约70万方的大型商业综合体,周边还有沃尔玛山姆会员店、红星美凯龙、富森美等综合性商业设施。随着发展,项目在实现优质人居蓝本的同时,后期配套还将迎来进一步升级。【医疗配套】周边医疗资源丰富,拥有天府新区人民医院、四川石油总医院、玛利亚天府妇产儿童医院、天府新区安琪儿国际妇女儿童医院、四川省中西医结合医院、四川宝石花医院等众多医疗机构。【生态娱乐】项目周边生态娱乐资源众多,紧挨着海昌极地海洋公园、南湖梦幻岛以及南湖湿地公园等。【优质教育】周边分布着金苹果幼儿园、天府四小、天府五小、天府实验小学、天府实验中学、天府实验外国语学校等优质教育资源。✅【多变户型】
✅【装修风格】
【广都鑫中心】售楼部热线:028-85558833(已认证)【广都鑫中心】客户经理电话:13281850333(微信同号)温馨提示:为了给您提供更高更好的接待服务质量,看房请提前致电售楼部预约!【有看房车接送服务,如需预约,请致电售楼部】
声明:本文由入驻焦点开放平台的作者撰写,除焦点官方账号外,观点仅代表作者本人,不代表焦点立场。


