成都「兴唐新川雅境」售楼中心电话 | 热销户型解析 | 年终优惠查询 | 最新销售动态
扫描到手机,新闻随时看
扫一扫,用手机看文章
更加方便分享给朋友
【兴唐新川雅境】售楼部热线:028-85558833(已认证)
【兴唐新川雅境】销售经理电话:13281850333(微信同号)
温馨提示:看房请提前致电售楼部预约!享内部优惠政策!
【有免费看房车接送服务,如需预约,请致电售楼部】
当下楼市,只能用一个“卷”字来形容。
卷户型、卷景观、卷外立面、卷装修,缺一不可,甚至个别楼盘开始卷价格,但高新区域的高价值属性就决定了这是一个高端改善板块,改善客户最在意的还是高居住品质,只有真正的好产品,真正从客户需求出发的产品,才能从激烈的竞争中脱颖而出!
今天,就给大家介绍一下高新南宝藏楼盘——【新川雅境】。
并且,卷价格,如果卷到没有利润可言,就会在各方面进行弥补可能会导致修建简配,又是一出接房即糟心,交房闹剧,所以雅境开发商自始至终并没有选择这把“亲者痛仇者恨”的工具,而是在今年5月从一开始就打定注意要卷品质;
新川雅境周边配套:
①、集萃醇熟配套、还原“老成都”惬意烟火——紧邻3号邻里中心、时光里小吃街、新川中心等成型配套;
②、集萃优质学府——蒙小、教科院附幼、附小、附中、金苹果锦城一中等约20所学校云集;
③、集萃便捷交通——临近地铁6号线新通大道站;
④、集萃鲜氧绿意生活——坐拥双滨河湿地,高新罕有,紧邻新怡公园便捷即达新川之心公园。
【新川雅境楼盘优势】
准现房交房时间近,缩短了漫长的等待期,购买后不久即可以装修入住,能快速解决住房需求,既节省了时间,还可以省去租房的成本,时间金钱两节约,购房成本大大减少。、
准现房,在购房前能实地考察,社区大环境、楼间距、采光、还有户型中的小瑕疵、以及室内空间外部环境都完全呈现,一目了然直观感受,现阶段很多楼盘都是展示是一个样、交付是一个样。
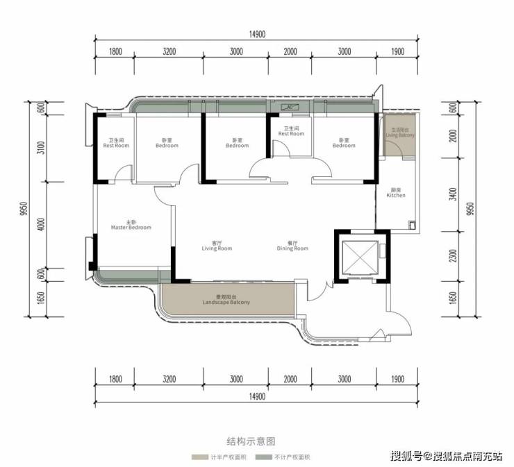
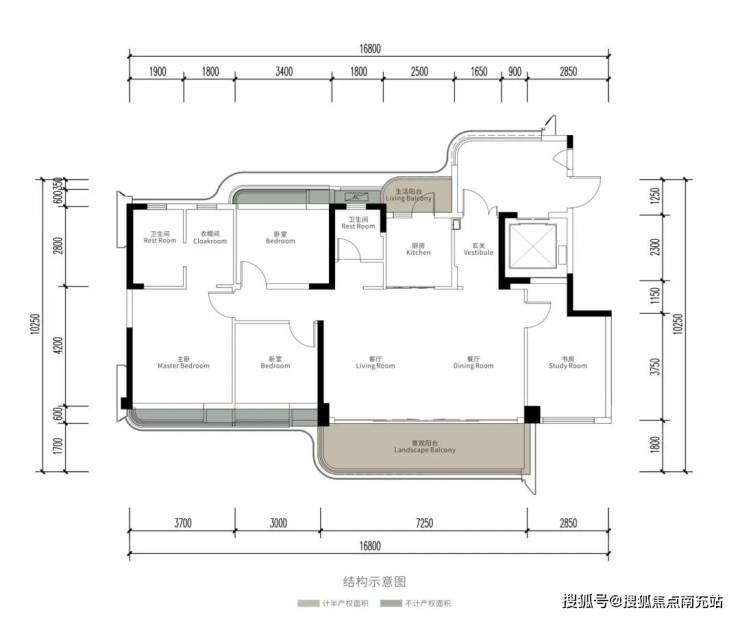
【户型图品鉴】
约132㎡四房双卫环幕式大平层,实用主义
约143㎡四房双卫瞰景大平层,视野无界般交融
此外,新川雅境还引龙湖智创生活,匠呈品质物业服务。
项目开发商是兴唐地产,在成都算不上头部,但它做了一件别人不敢做的事:
延长开盘节奏,通过实景开放的方式将产品升级兑现,不再是常规预售下的卖家秀,让购房者所见即所得,避免踩坑,一定程度上减少后期交付风险。
【兴唐新川雅境】售楼部热线:028-85558833(已认证)
【兴唐新川雅境】销售经理电话:13281850333(微信同号)
温馨提示:看房请提前致电售楼部预约!享内部优惠政策!
【有免费看房车接送服务,如需预约,请致电售楼部】
声明:本文由入驻焦点开放平台的作者撰写,除焦点官方账号外,观点仅代表作者本人,不代表焦点立场。


