重庆「巴滨无界」楼盘详情:坐落优越地段,畅享便捷生活,精选户型实景呈现,最新房价动态及时更新,专属置业顾问一对一咨询,深度诠释品质人居之美。
扫描到手机,新闻随时看
扫一扫,用手机看文章
更加方便分享给朋友
【巴滨无界】售楼部热线:023 - 68855575(已认证)温馨提示:若您有看房计划,请提前致电售楼部进行预约,可享内部优惠政策!同时,项目提供免费看房车接送服务,如需预约,请致电售楼部。【巴滨无界】项目卖点总结:1. **高性价比改善项目**:作为巴南区的改善型楼盘,性价比超高。总价50万起即可购置三房横厅高层住宅,为购房者提供了一个低门槛入住品质居所的机会。2. **高端立面工艺**:巴南首个采用铝板与大面积LOW - E玻璃相结合外立面的项目,与龙湖北岛、舜山府、绿城春溪雲庐等楼盘运用同类型立面工艺。这种高端工艺能确保建筑外立面在10年、20年后依然历久弥新,展现出卓越品质。3. **优质供暖体系**:作为巴南区唯一的高端居住社区,采用和悦来生态城相同的集中供暖体系。这一体系不仅能节省中央空调的使用费用,更能为业主带来最佳的居住体验。4. **特色无边界泳池**:小区内自带无边界泳池,泳池设于临崖景观下层,临崖而建,业主在此可正看罗滩河公园。在家就能享受度假酒店才有的高端配置,让生活充满惬意。5. **超低容积率**:小区容积率仅约1.26,相比当下市场上普遍容积率至少为1.5的洋房项目,该小区超低的容积率使得组团内部绿化面积更为充裕,楼间距更大,为业主营造出更加舒适、静谧的居住环境。6. **创新户型设计**:项目所有户型均为方厅设计,这种设计相较于传统横厅更具优势。方厅模糊了过道概念,使空间更开阔,使用率更高,同时还提升了得房率,是更契合高品质生活需求的户型设计。项目坐落于五城之一的环樵坪山数智城的核心——鹿界新城。鹿界新城位于东城大道城市主轴,土地平整,产业布局合理,是未来巴南区乃至整个南区极具发展潜力的区域。区域的发展离不开经济的有力支撑,这里聚集的两大千亿级产业园,为其发展提供了坚实保障。
项目配套:**交通配套**:项目交通网络十分发达,拥有“3纵4横5立交6隧道双轻轨”的交通格局。“3纵”即东城大道、内环快速、绕城高速;“4横”为天鹿大道、石美大道、东西大道、包茂高速;“5立交”包含茶园立交、鹿角立交、巴南立交、南环互通、江南立交;“6隧道”有龙洲湾隧道、真武山隧道、吉庆隧道、江南隧道(规划中)、鹿角隧道(在建中)、新燕尾山隧道(在建中);“双轻轨”指20号线(龙兴—界石,规划中)和8号线(途径重庆东站—干坝子站,规划中)。项目临近东城大道,经此往北可快速抵达鹿角、茶园板块,经真武山隧道能迅速到达南坪商圈,往南经吉庆隧道可快速前往龙洲湾商圈。**生活及商业配套**: - **市政公园环绕**:项目三面临公园,坐拥约650亩城市级市政公园。 - **代建特色公园**:约650亩市政公园中,有187亩是由开发商精心打造的罗滩河公园。罗滩河公园计划投资1亿,借助罗滩河生态系统的溪流,融合童趣、野趣、闲趣的理念打造而成。该公园将与项目建设同步启动,让业主入住即可享受公园美景。整个公园划分为六大主题及景观带。 - **天然氧吧环绕**:项目东西两侧为铜锣山和樵坪山,是城市里不可多得的天然氧吧。**医疗配套**:距离项目2公里处是界石医院;约16公里处有重庆医科大学附属第二医院,这是一所公立三级甲等教学医院。此外,项目所在区域还规划建设一所三甲医院(巴南区第二人民医院)。完善优质的医疗配套,为业主的健康生活提供可靠保障。
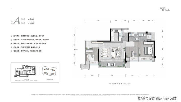
项目基本信息:总占地面积:25516㎡ ,总建筑面积:48924㎡,项目总占地面积约348亩。在售情况: - **一期1号楼**:小高户型,建面110㎡,三房两厅两卫。总高11层,2T4H,总价84.9w起,单价7723元/㎡起。 - **一期5、6号楼**:洋房户型,130㎡(24套)、143㎡(8套) ,四房两厅两卫。1T2户,2个单元,板式结构,总高8层,总价107w起,单价8254元/㎡起。 - **二期1号楼高层**:建面78㎡,三房两厅一卫,总价50 - 67万;建面92㎡,三房两厅两卫,总价70 - 80万。总高17层,2T4H。交付标准:清水物业公司:龙湖物业 总栋数:8栋车位比:1:1.5物业费 :高层2.7元/㎡、小高层2.8元/㎡ 、洋房3.2元/㎡接房时间:一期2025年6月,二期2025年12月容积率:1.26绿化率:30%
户型图:1. A1户型 - 星光:建面约110㎡
2. B2户型 - 云影:建面约132㎡
3. C户型 - 天镜:建面约143㎡
二期高层户型图:
【巴滨无界】售楼部热线:023 - 68855575(已认证)温馨提示:看房请提前致电售楼部预约!享内部优惠政策!【有免费看房车接送服务,如需预约,请致电售楼部】
声明:本文由入驻焦点开放平台的作者撰写,除焦点官方账号外,观点仅代表作者本人,不代表焦点立场。


