成都「空港云璟林著」售楼电话_2月最新房价动态_春节限时优惠活动_楼盘最新消息
扫描到手机,新闻随时看
扫一扫,用手机看文章
更加方便分享给朋友
【空港云璟林著】售楼部热线 028 84720058(已认证)
【空港云璟林著】项目经理热线 13281850333(微信同号)
温馨提示:为了给您提供更高更好的接待服务质量,看房请提前致电售楼处预约!
【有免费看房车接送服务,如需预约,请致电售楼处】
空港发展云璟林著的四大“底牌”
地产竞争已经从“拼规模”进入“拼产品”阶段,“产品力”对于房企的重要性日益凸显,在新的市场需求与竞争驱动下,房企想突破重围,回归产品本身是当务之急。
那么,作为空港发展怡心湖1号作品、TOP级的云璟林著,又有哪些亮点,让它一亮相即成为A区关注度最高的项目?
▶「公园化点式灵动布局」
项目占地约83亩,容积率2.0,这样的指标只在去年出现过,今年A区供应的地块都在50亩左右,大地块更方便景观、公区配套的营造。
云璟林著在近百亩的土地上只规划了21栋11-17F纯板式花园洋房,将更多的空间留给了绿化和景观。
更重要的是,云璟林著摒弃了传统的阵列式和大围合式排布,而是采用“公园化点式+围合”的灵动布局。
错落排布的建筑放大了视野和景观,项目最大楼间距约有167米,有效避免了楼栋间的对视,同时又形成了多个中庭,让阳光和风能穿透进来。
▶「公园微度假型景观」
云璟林著虽然在A区,但与怡心湖公园的距离不过900余米,妥妥的湖居属性。
而项目“城市公园微度假社区”的定位,其实并不只依托于B区的湖,从功能性和丰富性来说,A区的公园配套甚至更胜一筹。
约190亩的云熙公园(规划中)紧邻项目西侧,这个沿物联大道的带状景观长廊规划了四个景观组团,分别是乐活花园、秘境花园、运动花园、养健花园,云璟林著旁是秘境花园组团。
在项目东侧,是约452亩的26°活力绿心公园(规划中),在原有地块的峡谷浅丘地貌和原始河道上规划了丰富的场景,有树阵广场、运动场地、智慧设施、城市风廊、碧水清波……展现诗情画意的共享水岸画卷。
社区内部,云璟林著也规划了“一环三轴多园景观体系”,打造了十个不同主题的景观组团,可观赏,更可互动,为业主提供全龄活动空间。
关键,内外双重公园景观都由空港发展来打造,这也是“城市公园微度假型社区”云璟林著难以被超越的地方。
▶「高颜值的立面与公区」
颜值即正义,云璟林著的公建化立面极具美感,大面积的LOW-E玻璃,米白色和灰色的真石漆,搭配硬朗的线条,简洁而又现代,辨识度极高。
酒店式入户门厅,奢石照壁,在暖色调灯光的映衬下,将回家的温暖氛围诠释得淋漓尽致,仪式感满满。
▶「最“卷”的改善户型」
户型是当下市场最“卷”的部分。
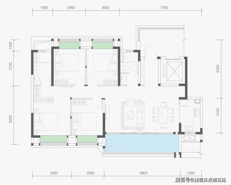
云璟林著的建筑面积约113-182㎡,全部是T2的板式结构,其中建筑面积约143㎡的四房户型更是“卷”出了新高度。
270°环幕端厅,这是很多200㎡+大平层产品都不一定有的配置,云璟林著居然用在了建面约143㎡的改善四房上,只能用奢侈来形容。
约7米的转角景观阳台,搭配约4.2米的进深,整个端厅拥有约13米的采光面,而且所有建面约143㎡户型的主景观面或正对中庭,或面向公园,户户有景;加上U型厨房,端厅建面约50㎡,室内的空间感、功能性和社交属性全部拉满。
建面约143㎡户型的空间布局也借鉴了大平层和别墅的设计,入户后动线分开,一侧是客餐厅和主卧,另一侧是三间次卧,既增加私密性,又突出了主人的尊崇感。
另外,超10㎡私享的全明电梯前厅,约25㎡的主卧套房,次卧最小面积也约10㎡的空间,以及近100%的得房率,都让云璟林著建面约143㎡户型极具市场吸引力。
再看项目建面约134㎡四房户型,同样是2T2,整体面宽约15.1米,保证了室内的明亮通透。
可私享的全明电梯前厅,约6.8米的横厅,算上景观阳台面积,整个LDK厅也有近40㎡,强化了改善的尺度感。
奢适的主卧套房,步入式衣帽间,兼得功能性与舒适性的客卧,建面约134㎡户型在功能性和舒适度之间找到了最佳平衡点。
其实,买房的底层逻辑就是价值选择,特别是在楼市整体低迷的大环境下,更要重点关注物业的可持续性和长远利益。
紧跟城市发展方向,置业城南必看怡心湖,而怡心湖买房,自然首选空港发展·云璟林著。
目前,空港发展·云璟林著已于12月26日取证,首批开出100套125.68-142.67㎡的4房产品,清水售价仅18796元/㎡起。
最低不到240W/套的总价,已经决定了它是上车怡心湖核心区最好的机会。
【空港云璟林著】售楼部热线 028 84720058(已认证)
【空港云璟林著】项目经理热线 13281850333(微信同号)
温馨提示:为了给您提供更高更好的接待服务质量,看房请提前致电售楼处预约!
【有免费看房车接送服务,如需预约,请致电售楼处】
声明:本文由入驻焦点开放平台的作者撰写,除焦点官方账号外,观点仅代表作者本人,不代表焦点立场。


