重庆「巴滨无界」10月动态详解:售楼处热线、在售户型信息、房价走势深度研判及当前购房优惠政策全面解析。
扫描到手机,新闻随时看
扫一扫,用手机看文章
更加方便分享给朋友
【巴滨无界】售楼部热线:023-68855575(已认证)
温馨提示:看房请提前致电售楼部预约!享内部优惠政策!
【有免费看房车接送服务,如需预约,请致电售楼部】
巴滨无界
项目卖点总结:
1.巴南区改善项目,超高性价比,总价50万起买三房横厅高层!
2.巴南首个外立面采用铝板和大面积的LOW-E玻璃结合,和龙湖北岛、舜山府、绿城春溪雲庐属于同类型的立面工艺,不管10年、20年外立面都历久弥新,最高端工艺。
3.巴南区唯一高端居住社区,采用与悦来生态城一样的供暖体系,集中供暖,节省中央空调费用,居住体验最佳。
4.小区自带无边界泳池,设于临崖景观下层,泳池临崖而建,正看罗滩河公园,业主在家就能享受度假酒店才有的配置。
5.小区容积率仅约1.26,现在市场上洋房的普遍容积率至少是1.5,我们超低容积率让组团内部绿化面积更多,楼间距更大
6.项目所有户型均为方厅设计,方厅优于横厅,模糊过道让空间更大、使用率更高,把传统横厅升级为方厅,超高得房率,是更合适高品质生活的户型设计。
项目就位于五城之一的环樵坪山数智城的核心——鹿界新城,处于东城大道城市主轴的鹿界新城土地平整,产业布置合理,是未来巴南区,乃至整个南区最有潜力的地方。任何一个区域的发展都离不开经济的支撑,这里聚集的两大千亿级产业园更是为发展起到了保驾护航的作用。
项目配套
交通配套
1)3纵(东城大道、内环快速、绕城高速);
2)4横(天鹿大道、石美大道、东西大道、包茂高速);
3)5立交(茶园立交、鹿角立交、巴南立交、南环互通、江南立交); 4)6隧道(龙洲湾隧道、真武山隧道、吉庆隧道、江南隧道(规划中)、鹿角隧道(在建中) 、新燕尾山隧道(在建中));
5)双轻轨(20号线(龙兴—界石,规划中);8号线(途径重庆东站—干坝子站,规划中)) 项目临近东城大道,经东城大道往北可快速到达鹿角、茶园板块,经真武山隧道快速到达南坪商圈,往南经吉庆隧道可快速到达龙洲湾商圈。
生活及商业配套
① 市政公园:项目三面临公园,坐拥约650亩城市级市政公园;
② 代建公园:约650亩市政公园其中有约187亩是由我们开发商打造的罗滩河公园;
③ 项目东西两侧为铜锣山和樵坪山,是城市里的天然氧吧。 重点为您介绍一下罗滩河公园,它占地187亩,由我们开发商计划投资1亿打造。我们将借助罗滩河生态系统的溪流,以及我们的主题设施,结合童趣、野趣、闲趣的理念所打造,并且它将与项目建设同步启动,让业主入住即享公园美景; 整个公园分为六大主题及景观带。
医疗配套
距离项目2公里,是界石医院 距离项目约16公里的重庆医科大学附属第二医院,是一所公立三级甲等教学医院; 项目所在区域还将规划建设一所三甲医院(巴南区第二人民医院) 优质的医疗配套让我们业主获得可靠的安全感。
总占地面积:25516㎡ ,总建筑面积:48924㎡,项目总占地面积约348亩
在售:一期1号楼
小高 :110㎡ 三房两厅两卫
总高11层 2T4H ,总价84.9w起
单价:7723元/㎡起
在售:一期5、6号楼
洋房:130㎡(24套)/143㎡(8套) 四房两厅两卫
1T2户 2个单元 板式结构 总高8层 ,总价:107w起
单价:8254元/㎡起
在售:二期1号楼高层
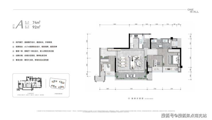
建面:78㎡,三房两厅一卫,总价50-67万
建面:92㎡,三房两厅两卫,总价70-80万
总高17层 2T4H
交付标准:清水
物业公司:龙湖物业
总栋数:8栋
车位比:1:1.5
物业费 :高层2.7/小高层2.8 /洋房3.2
接房时间:一期2025年6月,二期2025年12月
容积率:1.26
绿化率:30%
户型图
1:A1户型-星光:建面约110㎡
B2户型-云影:建面约132㎡
C户型-天镜:建面约143㎡
二期高层户型图:
【巴滨无界】售楼部热线:023-68855575(已认证)
温馨提示:看房请提前致电售楼部预约!享内部优惠政策!
【有免费看房车接送服务,如需预约,请致电售楼部】
声明:本文由入驻焦点开放平台的作者撰写,除焦点官方账号外,观点仅代表作者本人,不代表焦点立场。


