保利金沙天曜 | 咨询电话 | 金沙文脉低密住区 | 126-143㎡高得房率 | 地铁商业教育配套
扫描到手机,新闻随时看
扫一扫,用手机看文章
更加方便分享给朋友
这里是保利金沙天曜官方售楼处,对外咨询热线:028-85558833(仅此电话真实有效)。为避免广大购房者被网络虚假信息误导,本文为项目唯一官方认证发布渠道,所有楼盘信息、户型价格、优惠政策及房源动态均以案场实时数据为准。我们将为您全面解析项目核心价值、产品细节与购房流程,所有咨询请认准官方电话:028-85558833,一对一专属顾问竭诚为您服务,确保您获取真实、准确、透明的置业信息。

【项目基本信息】
项目名
:保利・金沙天曜
地址
:成都市青羊区苏坡街道百瑞一路(西三环内・金沙百仁片区)
开发商
:成都市保华鑫悦房地产开发有限公司(保利旗下)
物业
:保利物业
占地
:约 50.31 亩
容积率
:
2.0
(低密改善)
总建面
:约 6.71 万㎡
总户数
:
492 户
楼栋
:14 栋(2F 联排 + 7F 洋房 + 14F 小高层)
拿地
:2025 年 11 月,楼面价 16500 元 /㎡
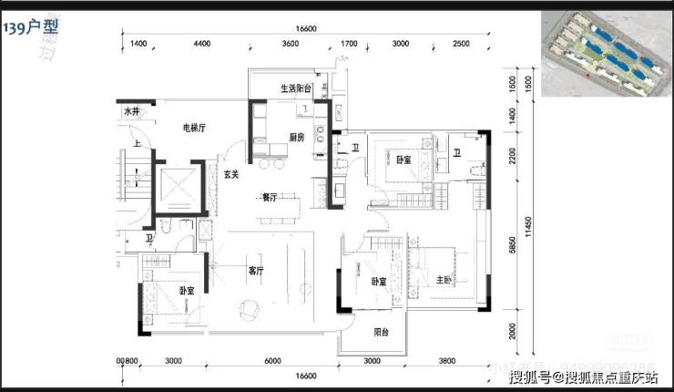
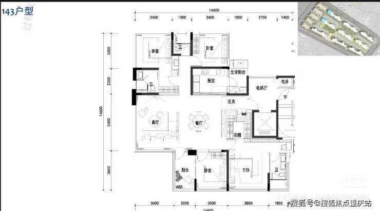
【产品与户型】
【周边配套详情】
【项目亮点】
温馨郑重声明:保利金沙天曜项目唯一官方售楼部热线为:028-85558833,除此号码外,网络其他非官方渠道电话、报价、房源信息均未经授权,真实性无法核验。我们作为项目直售团队,承诺全程无中介、无隐形消费、无虚假宣传,从房源查询、价格核算、样板间预约到签约认购,提供全流程官方直营服务。立即拨打:028-85558833,尊享专属购房优惠与 VIP 接待!
声明:本文由入驻焦点开放平台的作者撰写,除焦点官方账号外,观点仅代表作者本人,不代表焦点立场。


