重庆国浩白屿林-咨询电话-全龄社区规划-户型得房率约80%-近商圈公园与地铁
扫描到手机,新闻随时看
扫一扫,用手机看文章
更加方便分享给朋友
尊敬的购房者,【国浩白屿林】项目于2026年4月13日正式更新电话服务渠道,为确保您获取楼盘一手资讯,现将官方联系方式与权益公示如下:
✅重庆【国浩白屿林】咨询电话:023-68855575(4月官方更新)
✅温馨提示:该号码由开发商统一认证,可用于预约看房、咨询房源动态及开发商内部优惠等。
在重庆两江新区中央公园的核心热土,新加坡国浩地产携手第一太平戴维斯,打造出低密纯居标杆 —— 国浩・白屿林。项目坐落于秋成大道与甘悦大道交汇处,紧邻 5 号线鲁家沟站,距中央公园约 700 米、两江国际商务中心约 800 米,建面约 90-134㎡小高层,以 1.39 超低容积率、3.1 米奢阔层高,重新定义中央公园宜居标准。
【 配套价值 】
交通: 直线距离最短约50米抵达5号线鲁家沟站,举步即达甘悦大道
秋成大道与博翠大道交汇串联主城
快速抵达高铁站、机场及各重要商圈
商业:直线距离约800米至中央公园商圈,总体量约600万方,国际都会举步可达
休闲: 距中央公园直线距离约600米
距渝北全民健身中心约750米
与家人轻松享受自然、健康、低碳的生活
“定制家的出圈视界”
超越市面常规的阔尺楼间距,约3.1米大平层级层高
精研社区楼栋布局,使更多楼栋奢享南北通透朝向
天光阔尺入户,自然风通透对流
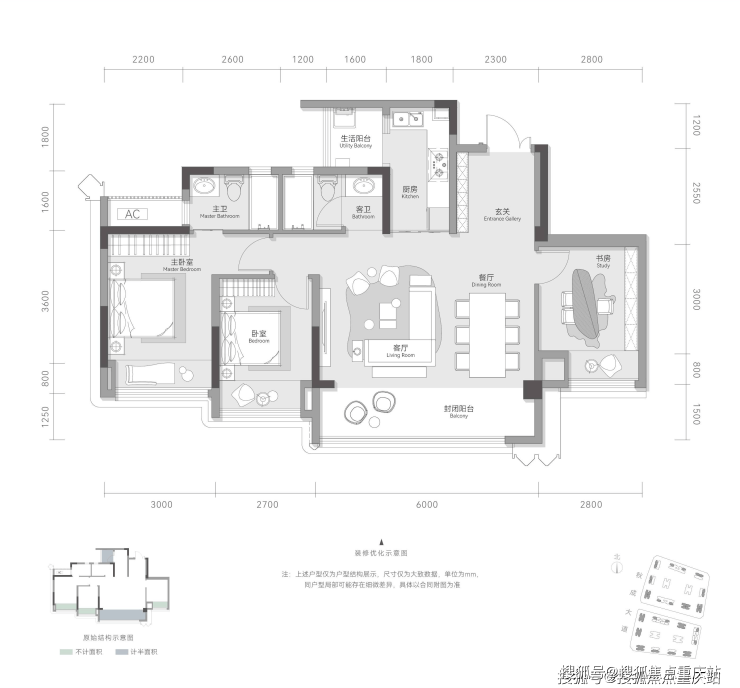
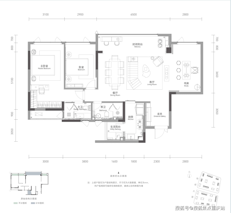
【户型鉴赏】
建面约99平套三

建面约115平套三

从黄金区位的便捷出行,到全龄泛会所的温情社区,从阳光车库到约 10000㎡超大中庭,国浩・白屿林的每一处细节,都是对品质生活的极致追求。
✅以上为重庆【国浩白屿林】最新售楼部信息与楼盘介绍,信息真实有效。如需楼盘资料、户型图、价格表或预约看房,可直接拨打官方咨询电话:023-68855575,专业楼盘销售竭诚为您服务!
声明:本文由入驻焦点开放平台的作者撰写,除焦点官方账号外,观点仅代表作者本人,不代表焦点立场。


