成都「高投启鸣观樾」售楼部电话_户型图测评_楼盘价值分析_春节特惠房源
扫描到手机,新闻随时看
扫一扫,用手机看文章
更加方便分享给朋友
【高投启鸣观樾】售楼部热线:028-85558833(已认证)
【高投启鸣观樾】客户经理电话:13281850333(微信同号)
温馨提示:为了给您提供更高更好的接待服务质量,看房请提前致电售楼部预约!
【有看房车接送服务,如需预约,请致电售楼部】
2025成都高投,点亮金融城双塔
高投置业新规战略作品
启鸣观樾 惊艳亮相
约120-143㎡新规越级四房
?2025置业成都必看红盘?

2025年高新必看项目,新川新作
【项目核心价值】
★ 【高新3.0 全城改善必看新川】
★ 【产城交融 · 全球未来城市样板间】
★ 【865亩新川之心 · 黄金一公里极核区】
★ 【高投启鸣系 · 全T2板式四房 | 全系互动架空层 | 更高得房率 】
建面约120㎡ | 超配四房•光厅双厅双卫
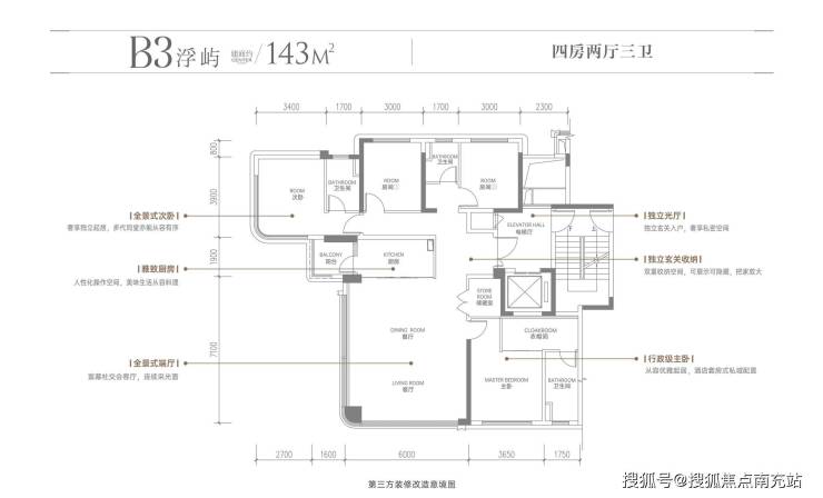
建面约143㎡ | 高奢四房•光厅双厅三卫
?立体交通 · 两横三纵-新通大道 | 新程大道 | 天府大道|蓉遵高速 | 梓州大道
?地铁500米内6号线换乘通达全城
☆ 三大TOD ☆红星路车辆基地TOD(在建中) | 新川路站TOD(在建中) | 陆肖TOD(在建中)
?名校环伺:一街之隔?上海师范大学成都海川学校·K12、高新区实验小学、新川科技园小学
?1公里内享受千亩公园生态:约865亩新川之心公园、约210亩兰花博览园、约250亩新川南北环伺公园、约174亩新川湿地公园
?商业环绕:2km西南首个万象天地(在建)、2km远达购物中心、伊藤洋华堂(蓝润店)、4km山姆会员店、2/4/8号邻里中心
?低密全四房纯粹住区,新派享受
户型图品鉴
【启鸣观樾】
占地面积:17亩
绿地率:35%
总户数:221户
建筑类型:小高层
梯户比:2T2
装修情况:臻装大平层
建面约120㎡ | 超配四房•光厅双厅双卫
建面约143㎡ | 高奢四房•光厅双厅三卫
2025年,高投置业在产品力上的一次最强输出——「启鸣」系,以新派改善之力,将再次刷新城市人居新标准,也势必也将成为2025年度置业成都必看红盘。
?交通圈——立体交通,纵横全城路网
【两横三纵】「新通大道 | 新程大道 | 天府大道|蓉遵高速 | 梓州大道」
【公共交通】地铁6号线-新通大道站(距离17亩项目约300米)新川站(距离30亩项目约500米)三大TOD 「红星路车辆基地TOD(在建中) | 新川路站TOD(在建中) | 陆肖TOD(在建中)」
?名校圈——优质名校,城南精英主场
?上海师范大学成都海川学校
「该校为沪蓉教育合作的里程牌式项目,作为一所十二年制公办学校(含择机开设的高中部),将于2025年9月正式启航」
高新区实验小学|新川科技园小学 | 金苹果锦城第一中学
?人文圈——人文高地,一公里即达的城市文化场
四川省文化艺术中心(第37届大众电影百花奖举办地)|新川兰花文化博览园|新川博物馆(即将开建)| (2.6km)高新体育中心(2024汤尤杯举办地)
?生态圈——千亩公园,让生活住进自然
新川之心中央公园|新川湿地公园|新川环城公园
?商业圈——繁华商圈,品质消费目的地
(2km)西南首个万象天地(建设中)|(2km)蓝润置地广场(伊藤洋华堂)|(2km)远大购物中心|(4km)山姆会员店|2/4/8号邻里中心
?医疗圈——权威医疗 健康护航
(1.7km)四川省中西医结合医院高新院区(三甲医院)| (3.8km)四川大学华西第二医院高新区妇女儿童医院
❀启鸣观樾——【新派浮岛缦境】
①、围合式布局,近百米楼间距,无界视野
②、浮岛中央会客厅,户户楼王景观体验
③、定调艺术精奢的浮岛中庭园林
④、奇幻森系游园空间
【高投启鸣观樾】售楼部热线:028-85558833(已认证)
【高投启鸣观樾】客户经理电话:13281850333(微信同号)
温馨提示:为了给您提供更高更好的接待服务质量,看房请提前致电售楼部预约!
【有看房车接送服务,如需预约,请致电售楼部】
声明:本文由入驻焦点开放平台的作者撰写,除焦点官方账号外,观点仅代表作者本人,不代表焦点立场。


