重庆「荣安九龙壹号」售楼处电话|楼盘实时价格|配套规划|优缺点分析
扫描到手机,新闻随时看
扫一扫,用手机看文章
更加方便分享给朋友
【荣安九龙壹号】售楼部热线:023-68855575(已认证)
温馨提示:看房请提前致电售楼部预约!享内部优惠政策!
【有免费看房车接送服务,如需预约,请致电售楼部】
【荣安九龙壹号公寓】
低首付 商圈旁 轨道口小户
【周边配套】
【交通】滩子口公交站,轻轨2号线杨家坪站,18号线滩子口站
【医疗】三甲医院,大坪医院、重医附一院、西南医院、新桥医院
【商业】五洲世纪文创中心、万象城、时代天街
【公园】玉龙公园、动物园、彩云湖公园
【项目卖点】
①荣安地产A股上市房企,中国房地产100强企业(77名)
②荣安荣获2次国家级广厦奖,相当于地产界的奥斯卡
③世界级九龙半岛限高12层-17层舒适居住区
④城市核心稀缺地段,水电气三通LOFT公寓
⑤项目200米便是地铁18号线滩子口站以及公交站
【产品信息】
产品:4.8米Loft公寓
总价区间:39-59万
面积区间:37-41平米
单价区间:0.81-1.2万
梯户比:2T23户
总高:11层
物业费:3.2元/平米
接房时间:(现房)
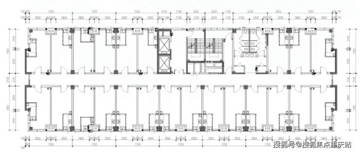
户型图
户型图2
【荣安九龙壹号】售楼部热线:023-68855575(已认证)
温馨提示:看房请提前致电售楼部预约!享内部优惠政策!
【有免费看房车接送服务,如需预约,请致电售楼部】
声明:本文由入驻焦点开放平台的作者撰写,除焦点官方账号外,观点仅代表作者本人,不代表焦点立场。


